3.72M

Строительное дело и оформление

1.

2.

Каркасная схема представляет собой систему, состоящую из фундаментов, колонн, горизонтальных
элементов — ригелей, балок, перекрытий и связей жесткости. Пространственная жесткость здания с
такой схемой определяется либо жесткой связью вертикальных и горизонтальных элементов, либо
установкой специальных элементов связи, воспринимающих горизонтальные нагрузки, действующие на
здание.

3.

Конструктивные
схемы каркасных
зданий: а — с
самонесущими
стенами, б — с
несущими
навесными
стенами

4.

Конструктивные схемы одноэтажных зданий - а, б, в
(неполный каркас кирпичные стены и столбы) и многоэтажных - г, д
(каркасные схемы — сборные
железобетонные колонны и стеновые панели)

5.

Толщина стен

6.

7.

Координационные оси
ГОСТ Р 21.1101-2013 Система проектной документации для
строительства (СПДС). Основные требования к проектной и рабочей
документации (с Поправкой)

8.

9.

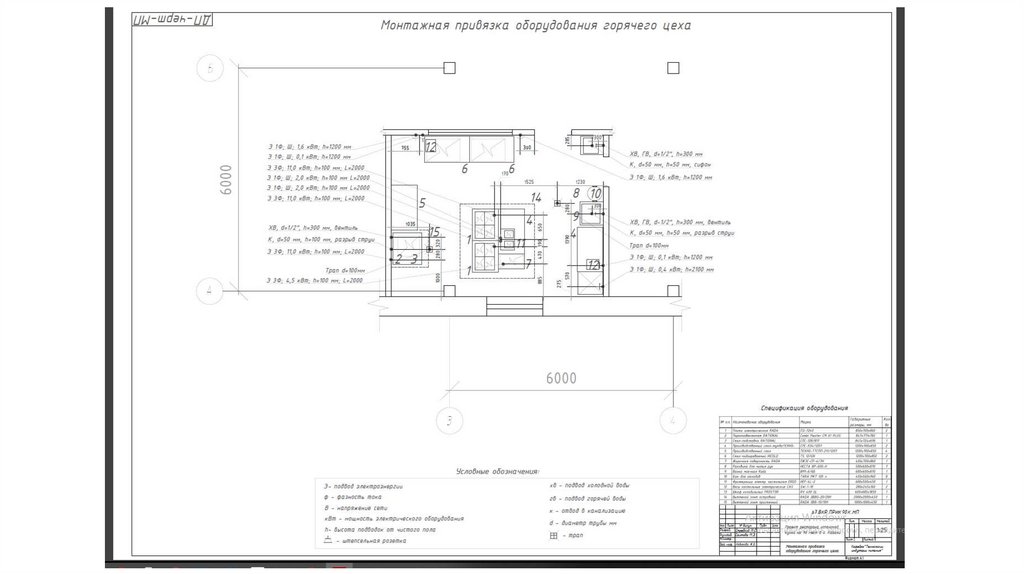
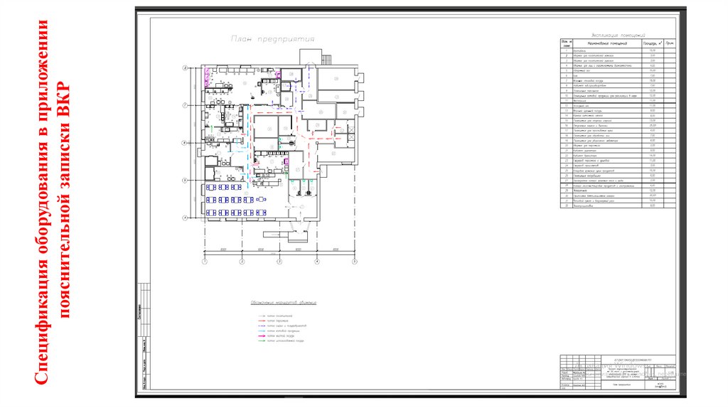
Спецификация оборудования в
приложении
пояснительной записки ВКР

10.

Спецификация оборудования в приложении
пояснительной записки ВКР

11.

Форматы
• Чертежи (схемы) выполняют на листах формата А1 (594х841 мм).
Листы оформляют рамкой и основной надписью.
• Рабочее поле ограничивается рамкой 5 х 5 х 5 х 20 мм, при этом поле
шириной 20 мм должно находиться справа
• Основная надпись вычерчивается в правом нижнем углу.
Основная надпись оформляется в соответствии с ГОСТ 2.104-2006
Единая система конструкторской документации (ЕСКД). Основные
надписи (с Поправками)
При выполнении чертежей следует руководствоваться требованиями
соответствующих стандартов ЕСКД или СПДС, или ЕСТД, или ЕСПД.

12.

Масштаб
Чертежи выполняют в оптимальных масштабах по ГОСТ 2.302-68 ЕСКД.
Масштабы (с Изменениями N 1, 2, 3) с
учетом их сложности и насыщенности информацией.
Масштабы уменьшения
1:2; 1:2,5; 1:4; 1:5; 1:10; 1:15; 1:20; 1:25; 1:40
1:50; 1:75; 1:100; 1:200; 1:400; 1:500; 1:800;
1:1000
Натуральная величина
1:1
Масштабы увеличения
2:1; 2,5:1; 4:1; 5:1; 10:1; 20:1; 40:1; 50:1;
100:1
ГОСТ 2.302-68 ЕСКД. Масштабы (с Изменениями N 1, 2, 3)
Заполнение рабочего поля листа должно быть около 75%

13.

Основная надпись и дополнительные
графы для чертежей

14.

15.

• Кодировка чертежа

16.

17.

18.

Основная надпись оформляется в соответствии с ГОСТ 2.104-2006.

19.

ГОСТ 2.104-2006
Основные надписи pасполагают в правом нижнем углу конструкторских
документов
English     Русский Правила