3.23M

Реконструкция СЭС АО "Тамбовский завод "Комсомолец" имени Н.С. Артемова"

1.

ВЫПУСКНАЯ КВАЛИФИКАЦИОННАЯ РАБОТА
Реконструкция СЭС АО "Тамбовский завод
"Комсомолец" имени Н.С. Артемова"
ВЫПОЛНИЛ
РУКОВОДИТЕЛЬ
Суслин Р.А.
Зарандия Ж.А.
ТАМБОВ – 2022

2.

Генплан предприятия

3.

Однолинейная схема
электроснабжения
завода

4.

Однолинейная
схема
электроснабжения
завода 2

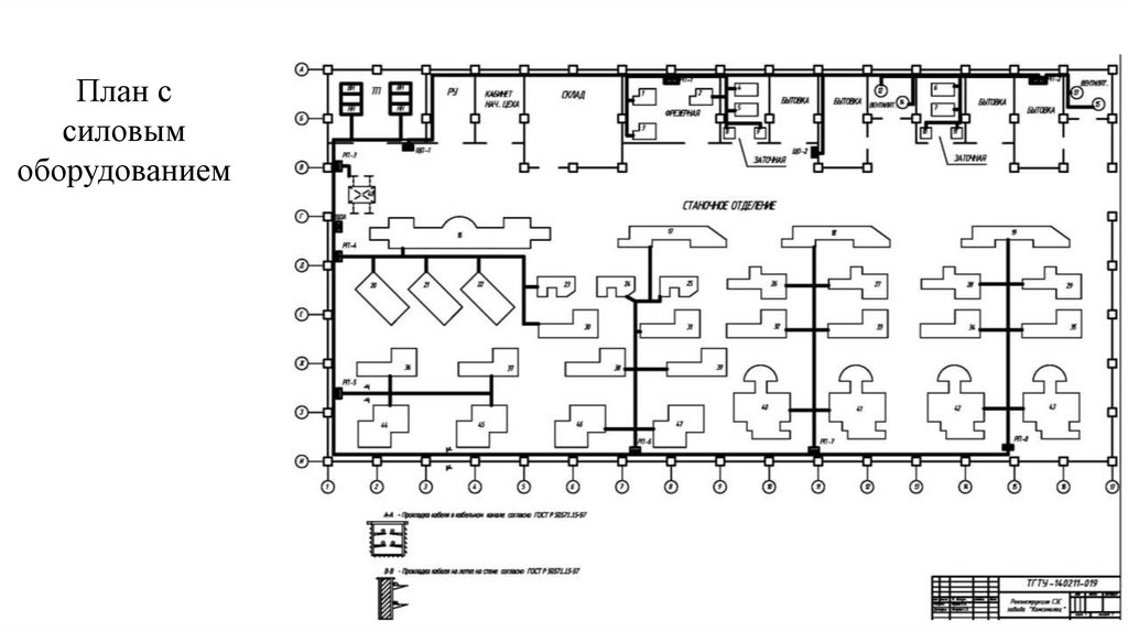
5.

План с
силовым
оборудованием

6.

План цеха с
размещением
систем освещения и
осветительной
канализации

7.

План
освещения цеха

8.

План освещения цеха

9.

Схема
электроснабжения
цеха

10.

Схема
электроснабжения
цеха 2
English     Русский Правила