3.16M
Категория:
Строительство
Похожие презентации:
Строительство промышленного здания
Техническая эксплуатация зданий
Техническая эксплуатация зданий и сооружений
Строительство и эксплуатация зданий и сооружений
Строительство эксплуатация зданий и сооружений
Строительство и эксплуатация зданий и сооружений
Строительство и эксплуатация зданий и сооружений
Строительство и эксплуатация зданий и сооружений
Строительство и эксплуатация зданий и сооружений
Я и моя профессия. Строительство и эксплуатация зданий и сооружений
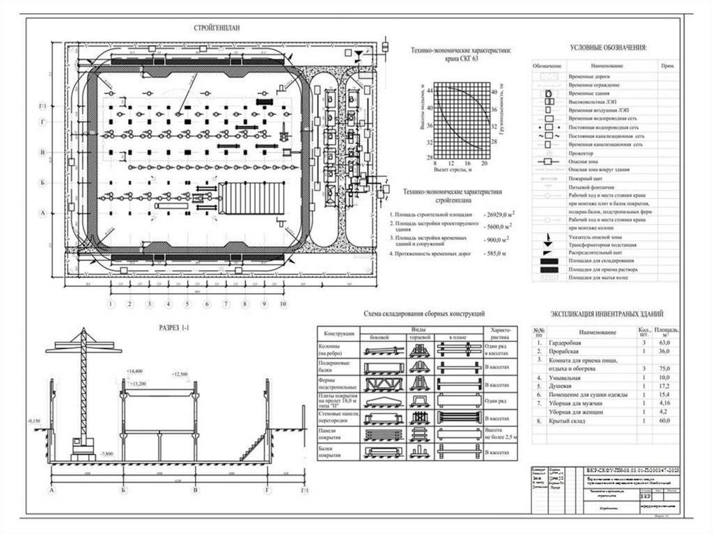
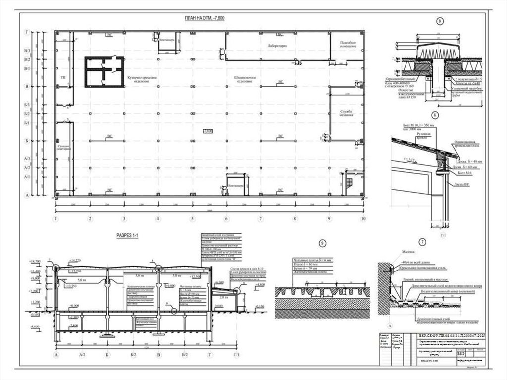
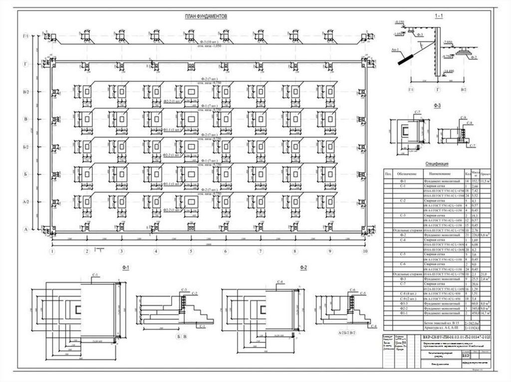
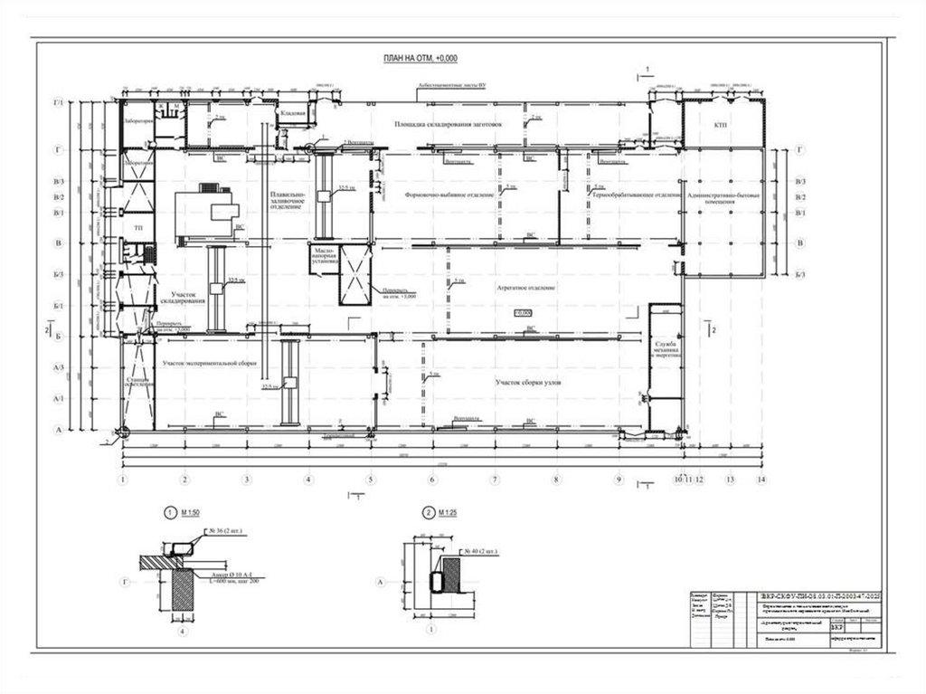
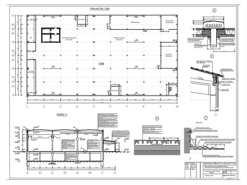
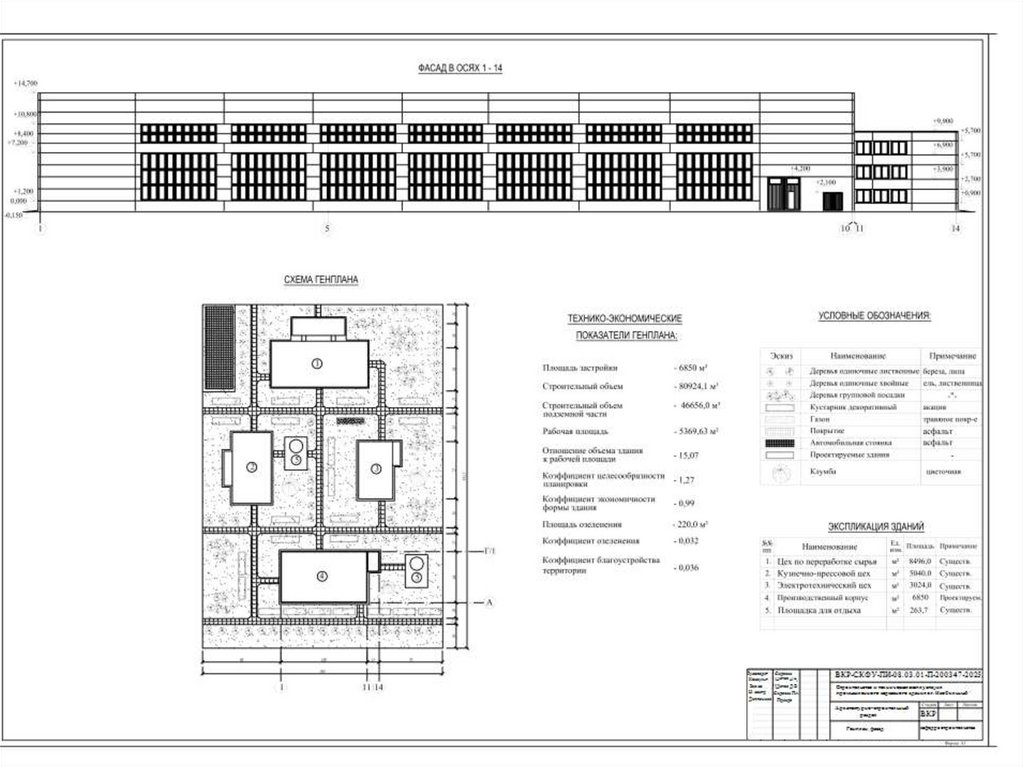
Строительство и техническая эксплуатация промышленного каркасного здания в г. Изобильный
1.
Строительство и техническая
эксплуатация промышленного
каркасного здания в г. Изобильный
Выполнил: Приндя В.В.
Руководитель: Сидякин П.А.
2.
3.
4.
5.
6.
7.
8.
9.
10.
11.
12.
13.
БЛАГОДАРЮ ЗА ВНИМАНИЕ!
English
Русский
Правила