461.25K
Категория: ПромышленностьПромышленность

Проект АРС

1.

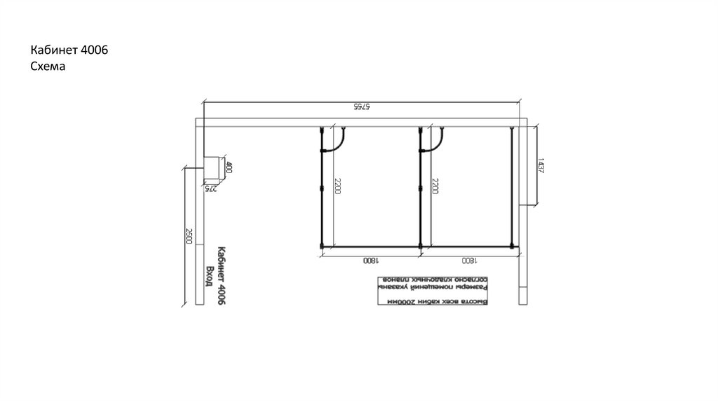
Кабинет 4006
Схема

2.

Кабинет 4006
Эскиз

3.

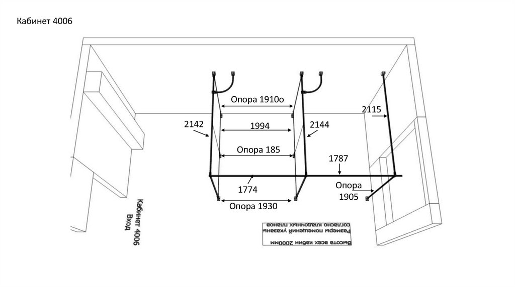
Кабинет 4006
Опора 1910о
2115
2142
1994
Опора 185
1774
Опора 1930
2144
1787
Опора
1905

4.

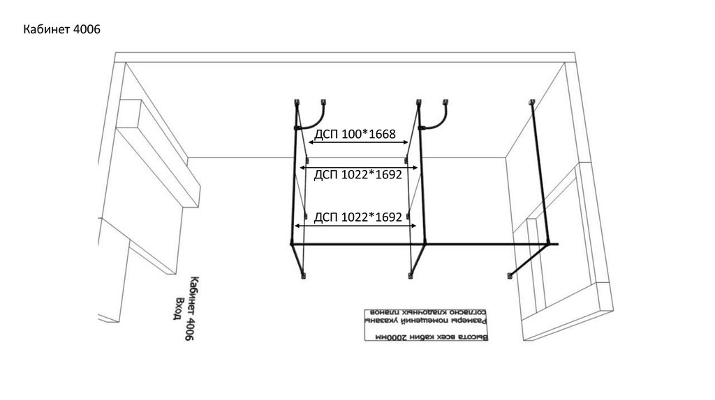
Кабинет 4006
ДСП 100*1668
ДСП 1022*1692
ДСП 1022*1692

5.

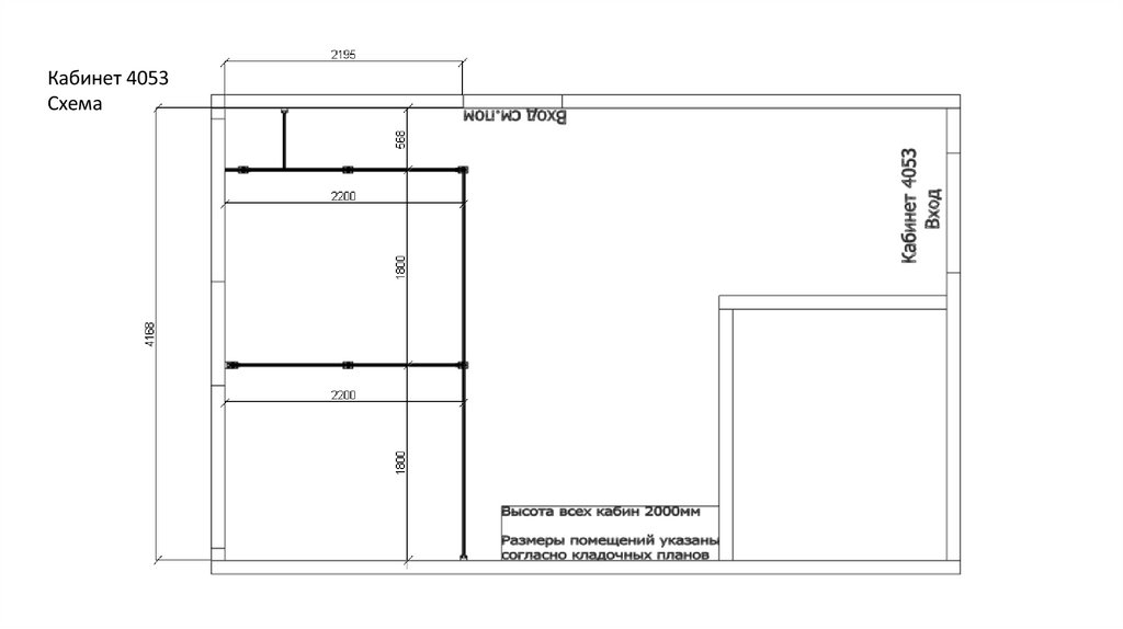
Кабинет 4053
Схема

6.

Кабинет 4053
Эскиз

7.

Кабинет 4053
Опора 1910о
2144
1944
Опора 185
1740
800 с
подрезкой
на месте
1774
2179
Опора 1930

8.

Кабинет 4053
ДСП
150*996
ДСП
150*1668
ДСП 997*1692
ДСП 997*1692

9.

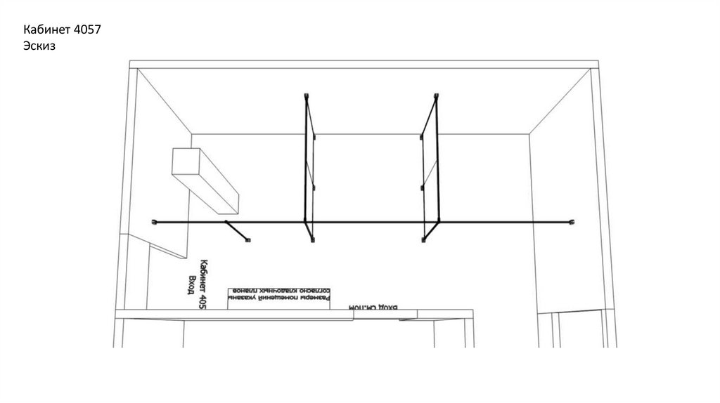
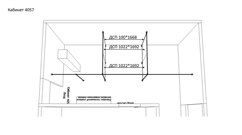
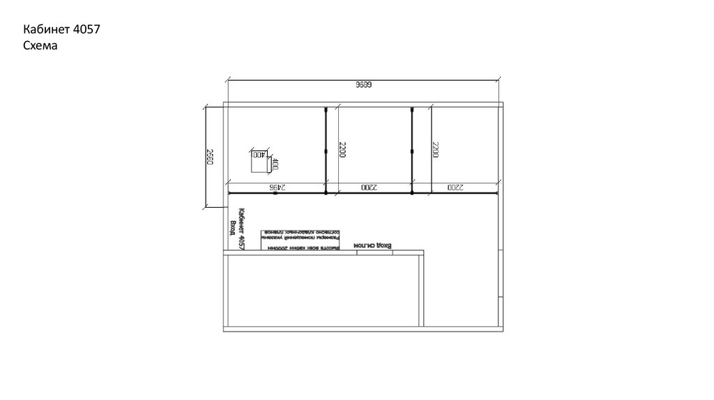
Кабинет 4057
Схема

10.

Кабинет 4057
Эскиз

11.

Кабинет 4057
Измерить габариты
перед монтажом и
сообщить нам!
Опора 1910о
2144
2436
Опора 1905
1994
2144
Опора 185
2174
Опора 1930
2340 с
подрезкой
на месте

12.

Кабинет 4057
ДСП 100*1668
ДСП 1022*1692
ДСП 1022*1692

13.

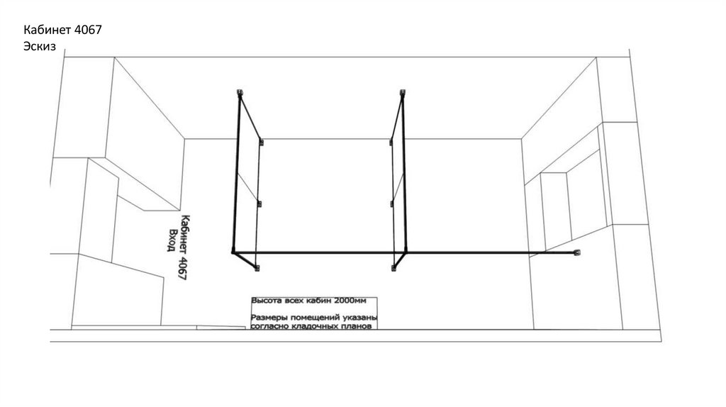
Кабинет 4067
Схема

14.

Кабинет 4067
Эскиз

15.

Кабинет 4067
Опора 1910о
2142
1994
2144
Опора 185
2174
Опора 1930
2140

16.

Кабинет 4067
ДСП 100*1668
ДСП 1022*1692
ДСП 1022*1692

17.

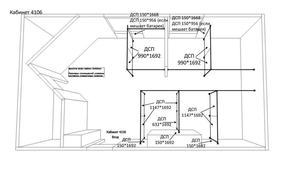
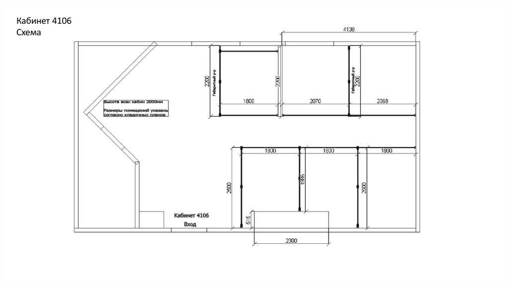
Кабинет 4106
Схема

18.

Кабинет 4106
Эскиз

19.

2166
1715
Опора 1910о
Опора 1910о
1930
1930
Опора 185
1740
Опора 185
2010
2131
2210 с
подрезкой
на месте
Опора 1930
Опора 1930
2442
1774
1774
Опора 1930
Опора 1930
2444
Опора 185
2244
Опора 1910о
1740
Опора 185
1929
Опора 1910о
2187
Измерить габариты
перед монтажом и
сообщить нам!
2187
Кабинет 4106

20.

Кабинет 4106
ДСП 150*1668
ДСП 150*1668
ДСП 150*956 (если
ДСП 150*956 (если
мешает батарея)
мешает батарея)
ДСП
990*1692
ДСП
1147*1692
ДСП
632*1692
ДСП
150*1692
ДСП
150*1692
ДСП
990*1692
ДСП
1147*1692
ДСП
150*1692
English     Русский Правила