Лекция № 6
8.54M
Категория: МеханикаМеханика

Нормирование отклонений формы, взаимного расположения поверхностей, волнистостей и шероховатостей. Лекция № 6

1. Лекция № 6

•Нормирование отклонений
формы, взаимного расположения
поверхностей, волнистостей и
шероховатостей

2.

3.

4.

5.

6.

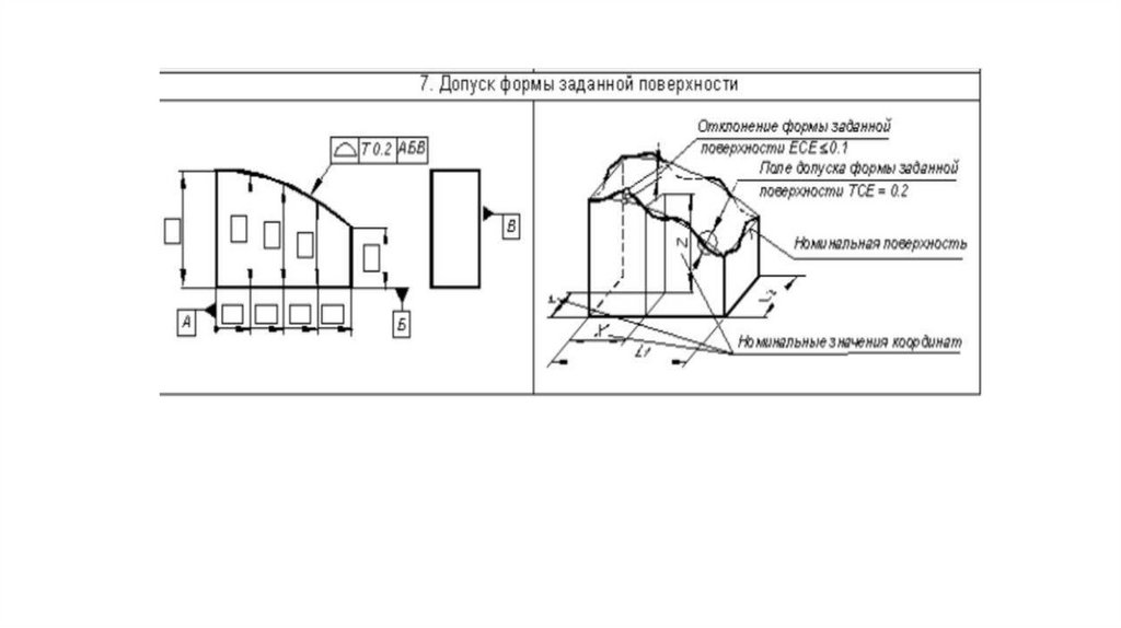
7.

8.

9.

Виды допусков расположения

10.

Отклонения и допуски расположения поверхностей
Отклонением расположения ЕР называется отклонение реального расположения рассматриваемого элемента
от его номинального расположения. Под номинальным понимается расположение определяемое
номинальными линейными и угловыми размерами.
Для оценки точности расположения поверхностей назначаются базы (элемент детали, по отношению к
которому задается допуск расположения и определяется соответствующее отклонение).
Допуском расположения называется предел, ограничивающий допускаемое значение отклонения
расположения поверхностей.
Поле допуска расположения ТР – область в пространстве или заданной плоскости, внутри которой должен
находиться прилегающий элемент или ось, центр, плоскость симметрии в пределах нормируемого участка,
ширина или диаметр которой определяется значением допуска, а расположение относительно баз –
номинальным расположением рассматриваемого элемента.

11.

12.

13.

14.

15.

16.

17.

Виды суммарных допусков и их условное изображение

18.

19.

20.

21.

22.

Шероховатостью поверхности называется
совокупность
неровностей
поверхности
с
относительно малыми шагами, выделенная на
определенной (базовой) длине (ГОСТ 2789-73).

23.

В большинстве стран мира в качестве базовой линии при оценке
поверхностных неровностей используется средняя линия.
Средняя линия профиля (m)
- это базовая линия, имеющая форму номинального профиля и
проведенная так, что в пределах базовой длины среднее
квадратическое отклонение профиля от этой линии минимально.
О средней линии можно также говорить как о линии,
проведенной таким образом, чтобы площади, ограниченные
профилем и средней линией над ней и под ней, были одинаковы.

24.

В определении понятия шероховатости указано, что совокупность
неровностей выявляется на определенной длине. Эта «определенная длина»
называется базовой длиной.
Базовая длина (l) — это длина базовой линии (средней линии профиля),
используемая для выделения неровностей, характеризующих шероховатость
поверхности.

25.

Нормируемые
базовые
длины
ориентировочно
разделены на три группы:
l = 0,01; 0,03; 0,08 мм — для относительно малых
неровностей;
l = 0,25; 0,08 мм — для средних высот неровностей;
l = 2,5; 8; 25 мм — для больших неровностей.

26.

Существуют более 40 геометрических параметров для оценки шероховатости.
Однако для практического нормирования используют шесть параметров:
Вертикальные параметры:
Ra — среднее арифметическое отклонение профиля;
Rz — высота неровностей профиля по десяти точкам;
Rmax — наибольшая высота профиля.
Горизонтальные параметры:
Sm — средний шаг неровностей профиля;
S — средний шаг местных выступов профиля;
tp — относительная опорная длина профиля.

27.

28.

29.

30.

Зависимость параметров шероховатости Ra или Rz
от уровня относительной геометрической точности
Уровень относительной
геометрической
точности (Тф / Т)
Ra
Rz
не более
А (60%)
0,050
0,20
В (40%)
0,025
0,10
С (25%)
0,012
0,05

31.

Условные обозначения направления неровностей
English     Русский Правила