871.47K
Категория: МузыкаМузыка

Расчет аппаратно-студийного комплекса телерадиовещания и аудиотехники: расчет акустического оформления студий

1.

МИНИСТЕРСТВО ЦИФРОВОГО РАЗВИТИЯ, СВЯЗИ И
МАССОВЫХ КОММУНИКАЦИЙ РОССИЙСКОЙ ФЕДЕРАЦИИ
ФЕДЕРАЛЬНОЕ ГОСУДАРСТВЕННОЕ БЮДЖЕТНОЕ
ОБРАЗОВАТЕЛЬНОЕ УЧРЕЖДЕНИЕ ВЫСШЕГО ОБРАЗОВАНИЯ
«САНКТ-ПЕТЕРБУРГСКИЙ ГОСУДАРСТВЕННЫЙ УНИВЕРСИТЕТ
ТЕЛЕКОММУНИКАЦИЙ ИМ. ПРОФ. М. А. БОНЧ-БРУЕВИЧА»
Факультет РТС
Кафедра ЦТМ
Учебная дисциплина «Звуковое вещание»
КУРСОВОЙ ПРОЕКТ
«Расчет аппаратно-студииного комплекса телерадиовещания и
аудиотехники: расчет акустического оформления студий, театров и
концертных залов»
Выполнил: ст. группы РЦТ-21
Абрамов Михаил Дмитриевич
Проверила: ст. преподаватель кафедры ЦТМ
Ишутина Оксана Юрьевна
Санкт-Петербург
2025 г.

2.

Кафедра цифрового телевидения и метрологии (ЦТМ)
Задание на курсовое проектирование по дисциплине «Звуковое вещание» на тему
«Расчет аппаратно-студииного комплекса телерадиовещания и
аудиотехники: расчет акустического оформления студий, театров и
концертных залов»
Вариант: 479
Группа: РЦТ-21
Студент: Абрамов Михаил Дмитриевич
Выполните расчет помещения аппаратно-студийного комплекса телерадиовещания и
аудиотехники на требуемые акустические условия:
Помещение: Студия звукозаписи
Форма помещения: шестиугольная
Тип помещения: для эстрадно-джазовой музыки
Размеры помещения:
высота h = 9.8 м
площадь пола S = 435 м2
объем V = 4263 м3
Количество исполнителей: 71
Оптимальное время стандартной реверберации:
T = 0.95 с
T (125 Гц) = 0.95 с
Δ T = 0.1 с
Примечание:
Поглощающие материалы размещены в передней части студии со стороны окна в студийную
аппаратную, отражающие/рассеивающие звук матриалы — по бокам и сзади от исполнителей.
Дата выдачи задания: 18.02.2025
30.04.2025
Руководитель курсового проекта:
Дата сдачи проекта:
преподаватель кафедры ЦТМ Ишутина О. Ю.
2

3.

Содержание
Содержание .........................................................................................................2
Введение ..............................................................................................................4
1. Определение требуемого звукопоглощения в помещениях .....................5
студийного комплекса........................................................................................5
2. Расчет звукопоглощения, вносимого основным фондом ..........................8
3. Расчет звукопоглощения, вносимого специальными ..............................10
материалами и конструкциями .......................................................................10
4. Расчет времени стандартной реверберации ..............................................12
5. Расчет звукоизоляции студийного помещенияОшибка!
определена.
Закладка не
6.
Построение и анализ трехмерной модели студийного
помещения.............................................. Ошибка! Закладка не определена.
Заключение........................................................................................................28
Список используемой литературы .................................................................29
3

4.

Введение
В данном курсовом проекте целью работы является изучение
теоретического и практического методов расчётов акустических
параметров помещений.
Все расчёты выполняются для частотного диапазона: 125 Гц, 250 Гц,
500 Гц, 1000 Гц, 2000 Гц, 4000 Гц.
План выполнения:
• Изучение теории, методических указаний и дополнительной
литературы.
• Выполнение теоретического расчёта времени стандартной
реверберации с помощью методических указаний.
• Выполнение практического
расчёта времени стандартной
реверберации с помощью программы Ulysses.
• Анализ и сравнение полученных результатов.
4

5.

Определение требуемого звукопоглощения в помещениях
студийного комплекса
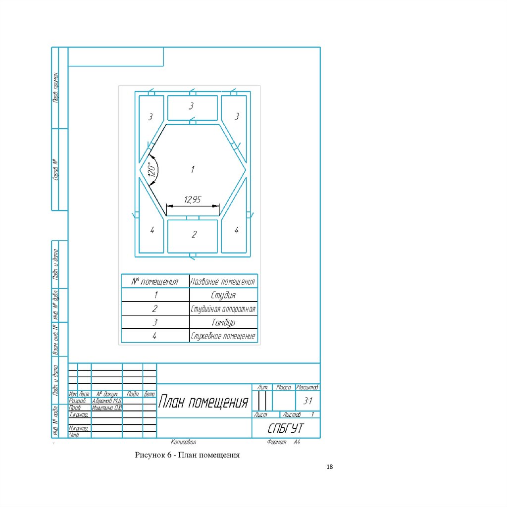
Тип проектируемого
помещения (студии звукозаписи):
студия
звукозаписи, форма – шестиугольная.
Необходимо выполнить расчет помещения, имеющего площадь пола
Sп = 435 м2 и высоту потолка h = 9,8 м, объём помещения равен V = 4263 м3.
Количество исполнителей и сотрудников – 71.
Требуется обеспечить время стандартной реверберации T = 0,95 с. с
допустимым отклонением ΔT = 0,95 c.
T
English     Русский Правила