Похожие презентации:
Проектирование электротехнической службы для комбината по производству сахара
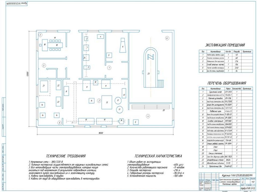
1.
Федеральное государственное бюджетное образовательное учреждениевысшего образования «Курский государственный аграрный университет
имени И.И. Иванова»
Кафедра инженерных технологий в АПК
Выпускная квалификационная работа
(Дипломный проект)
Проектирование электротехнической службы
для комбината по производству сахара
Выполнил:
обучающийся группы ЭЛ-12с
Г.М. Алябьев
преподаватель
Масалов М.А.
Руководитель:
Курск - 2025
2.
3.
4.
5.
ДОКЛАД ОКОНЧЕН.СПАСИБО ЗА ВНИМАНИЕ!
Электроника
Промышленность