Актуальность работы
Задачи
Расчетно-конструктивный раздел
Раздел Основания и фундаменты
5.78M
Категория: СтроительствоСтроительство

Проект шестиэтажного жилого дома с нежилыми помещениями на первом этаже в г. Ряжске

1.

РЯЗАНСКИЙ ИНСТИТУТ (ФИЛИАЛ)
ФЕДЕРАЛЬНОГО ГОСУДАРСТВЕННОГО АВТОНОМНОГО ОБРАЗОВАТЕЛЬНОГО УЧРЕЖДЕНИЯ ВЫСШЕГО
ОБРАЗОВАНИЯ
«МОСКОВСКИЙ ПОЛИТЕХНИЧЕСКИЙ УНИВЕРСИТЕТ»
РЯЗАНСКИЙ ИНСТИТУТ (ФИЛИАЛ)
МОСКОВСКОГО ПОЛИТЕХНИЧЕСКОГО УНИВЕРСИТЕТА
КАФЕДРА ПРОМЫШЛЕННОГО И ГРАЖДАНСКОГО СТРОИТЕЛЬСТВА
Выпускная квалификационная работа
Тема: Проект шестиэтажного жилого дома с нежилыми
помещениями на первом этаже в г. Ряжске
Руководитель: ст. преподаватель Карпушин
Н.Н.
Выпускник: Фадеев Н.С.

2. Актуальность работы

Жилищная проблема является наиболее острой из всех
социальных
проблем
города.
За
последнее
время
изменились
экономические условия и появилась возможность, используя
различные финансово - кредитные механизмы, строить
жилье для более широких слоев населения. Одновременно с
этим повысился спрос на жилье.
Людям важно иметь рядом магазины, поликлиники,
аптеки, школы, детские развивающие центры. Исходя из
вышесказанного тема данного проекта актуальна.

3. Задачи

В проекте следует решить следующие задачи:
- использовать для проектирования площадку, находящуюся
на месте зеленых насаждений, подлежащих выкорчевке;
- снизить стоимость строительства жилья, в том числе
за счет внедрения прогрессивных технологий строительной
индустрии;
- выполнить в рамках выпускной квалификационной работе
основные расчеты, необходимые для дальнейшего
проектирования здания в целом.

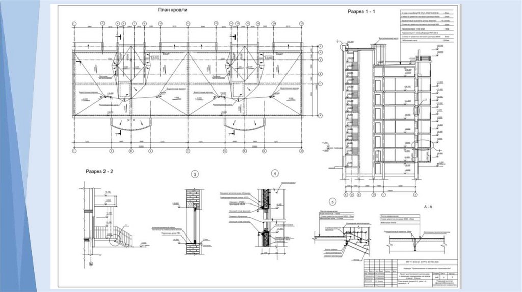
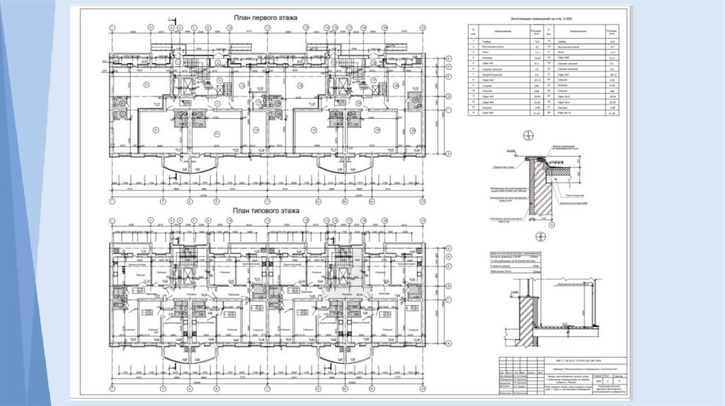
4.

РАЗДЕЛ АРХИТЕКТУРНЫЕ РЕШЕНИЯ
Проектируемое шестиэтажное жилое здание располагается
в г.Ряжске, на участке в направлении ул. Высотная
Здание имеет бескаркасную (стеновую) конструктивную
систему.
Проектируемое жилое здание –шестиэтажное,
прямоугольное в плане с габаритными размерами в осях
45,0 х 13,8 м.
Высота здания – 22,100 м, высота этажа – 2,8 м,
высота технического этажа – 1,8 м. Жилой фонд
представлен одно-, двухкомнатными квартирами. Всего в
доме 40 квартир.

5.

Конструкция стены состоит из
внутреннего (несущего) слоя, выполненного из
поризованных керамических блоков и
наружного (самонесущего) слоя из
клинкерного керамического кирпича.
Между наружным и внутренним слоями
кирпича укладывается теплоизоляционный
материал Rocwool «Кавети Баттс» – это
утеплитель из минеральной ваты размером
1000х600х140мм.
Толщина стен - 510мм. Кирпичи
укладываются на цементно-песчаный
раствор М100.
Перекрытия сборные из пустотных
железобетонных плит толщиной 220 мм.
Лестничные марши сборные, ширина марша
– 1200 мм, ширина лестничной площадки –
1600 мм.
Кровля – плоская, неэксплуатируемая.

6.

7.

8.

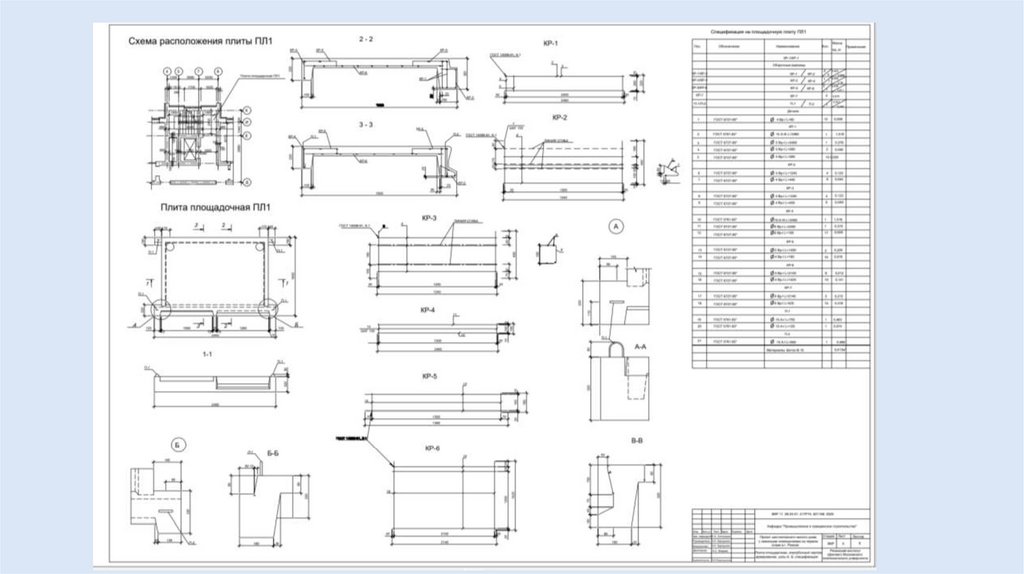
9. Расчетно-конструктивный раздел

В данной части выпускной квалификационной работы выполнен
расчет плиты перекрытия с круглыми пустотами.
Для конструирования плит применяется бетон класса
В-20.
Швы
между плитами, а также швы
в местах
примыкания тщательно заливают бетоном В-15 на мелком
заполнителе. Рабочая арматура плиты принята диаметром 12,
класса А-800, а каркас по расчету принят диаметром 4 класса
В-500.

10.

11.

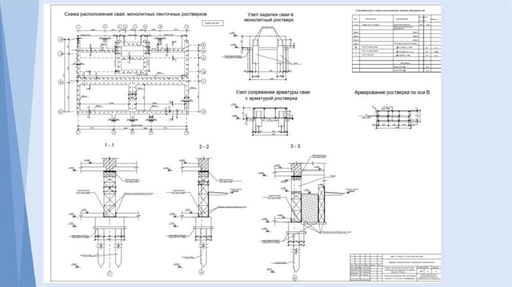
12. Раздел Основания и фундаменты

В данном разделе выполнено проектирование основания и расчет
свайных фундаментов с монолитным ростверком.
Характеристики грунтов взяты усредненные по 2-м скважинам.
Глубина заложения свай -9,250 м. Сваи цельные сплошного
квадратного сечения с ненапрягаемой арматурой С 60.30-6.
Глубина заложения ростверка на глубине -3,300 м.
Материал ростверка: арматура диаметром 12, класса А-400С,
бетон В-15 Максимальная осадка фундамента не превышает
предельно допустимую.

13.

14.

Раздел
Технология строительства, организация
строительства
В данной части разработана технологической карты на монтаж
плит перекрытия типового этажа.
В состав работ, рассматриваемых в карте, входят:
- выгрузка плит;
- прием раствора;
- подача раствора;
- укладка плит;
- сварка анкеров;
- заделка стыков.
При монтаже плит перекрытий используется
башенный кран Кб-503. Работы выполняются за 5 дней.

15.

Для строительства жилого здания в г. Ряжске
был составлен
календарный план строительства где были учтены основные виды работ и
срок
строительства
составил
190
дней
сроки
строительства
сокращаются на 0,3 месяца. Был построен график движения рабочей силы
максимальное число рабочих составило 47 человек. Коэффициент
равномерности 1,42 что меньше допустимого.
Начало строительства объекта –апрель 206 года
Окончание строительства – декабрь 2026 года.
На основе Календарного плана был разработан стройгенплан, где были
рассчитаны временные здания и сооружения, определены
зоны влияния
монтажного крана.

16.

17.

18.

Раздел Экономика
Общая сметная стоимость
строительства по сводному
сметному расчету определена в
сумме- 391994,85 тыс. рублей.
В результате применения
рациональных технологических
решений по возведению здания,
сроки строительства
сокращаются на 0,3 месяца, это
дает дополнительный
экономический эффект в 104,5
тыс. рублей.
Технико-экономические
показатели

19.

Раздел Безопасность жизнедеятельности
В разделе «Безопасность
жизнедеятельности» требуется
выполнить необходимые условия по технике безопасности, не
допустить травматизма и несчастных случаев, добиться
плавного течения производственных процессов. .

20.

Доклад окончен.
Спасибо за внимание!
English     Русский Правила