Процесс изготовления верхнего поршня
Применяемость
Заготовка
Установ А Все работы выполняются на Токарно-фрезерном центре с наклонной станиной
Установ Б
Установ Б
Установ В
Установ В
Установ В
Полученное изделие
Спасибо за внимание
4.14M
Категория: МеханикаМеханика
Похожие презентации:

Процесс_изготовления_верхнего_поршня

1. Процесс изготовления верхнего поршня

Выполнил: ст. гр. М24-СК
Марамзин Леонид

2. Применяемость

Верхний поршень является частью подводной испытательной подводной
газодобычи, которая служит для обеспечения изоляции пластового флюида и
других жидкостей в эксплуатационном стволе, а также обеспечивает
свободный пропуск инструментов, датчиков, электрических и оптоволоконных
линий для установки и дальнейшего управления, устанавливаемого
оборудования. Поэтому к данной детали предъявляется ряд требований:
повышенный класс точности поверхностей сопряжения и минимальные
отклонения расположения поверхностей для достижения высокого уровня
герметичности устройства.

3.

4. Заготовка

5. Установ А Все работы выполняются на Токарно-фрезерном центре с наклонной станиной

• I Точить наружный Ø370 мм на всю
длину
• II Точить внутренний Ø290 мм на
длину l=267,5 мм
• III Точить внутренний Ø326 мм на
длину l=178,5 мм
• IV Подрезать торец на длину l=10 мм

6. Установ Б

• I
Точить наружный Ø368 мм на длину l=155 мм
• II
Точить наружный Ø365 мм на длину l=94 мм
• III
Точить наружный Ø355,2 мм на длину l=14,85 мм
• IV
Точить поверхность от Ø308 мм до Ø365 мм под углом 540
• V
Точить скругление R10 на наружных Ø308 мм и Ø365 мм
• VI
Точить наружный Ø308 мм на длину l=10 мм
• VII
Точить внутренний Ø280 мм на длину l=67,5 мм
• VIII
Точить внутренний Ø297 мм на длину l=14,85 мм
• IX
Точить наружный Ø367,7Н8 на длину l=14,85 мм
• X
Точить внутренний Ø279,4Н8 на длину l=67,5 мм
• XI
Точить внутренний Ø291,44Н8 на длину l=14,85 мм
• XII
Просверлить 8 отверстий Ø10 на глубину l=20
• XIII
Просверлить 8 отверстий Ø10 на глубину l=40
• XIV
Зенковка фаски в отверстии Ø10 и l=40
• XV
Развертывание отверстия Ø10 и l=40
• XVI
Нарезание резьбы M10-7H в отверстиях Ø10 и l=40

7. Установ Б

8. Установ В

• I Точить наружный Ø370 мм на всю
длину
• II Точить внутренний Ø290 мм на
длину l=267,5 мм
• III Точить внутренний Ø326 мм на
длину l=178,5 мм
• IV Подрезать торец на длину l=10 мм

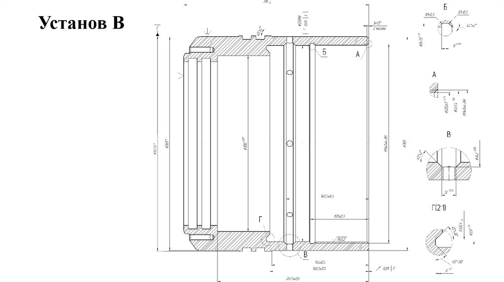
9. Установ В

• I
Точить наружный Ø365 мм на длину l=168,5 мм
• II
Подрезать торец на длину l=10 мм мм
• III
Точить фаску 3x450 мм к Ø365 мм
• IV
Точить внутренний Ø335 на длину l=165 мм
• V
Точить внутренний Ø335,67 на длину l=100 мм
• VI
Точить фаску 3x450 мм к Ø335 мм
• VII
Точить внутренний Ø341,5 мм на длину l=10 мм
• VIII
Нанести внутреннюю резьбу М340х8-Н на длину l=100 мм
• IX
Точить внутренний Ø343 мм на длину l=12 мм
• X
Точить внутренний Ø322 мм на длину l=6 мм
• XI
Точить наружный Ø331 на длину l=6 мм
• XII
Точить поверхность от Ø330 до Ø333 под углом 450
• XIII
Точить поверхность от Ø322 на длину l=6 мм под углом 450
• XIV
Сверлить 8 отверстий Ø10

10. Установ В

11. Полученное изделие

12. Спасибо за внимание

English     Русский Правила