ПОКРЫТИЯ,КРЫШИ,КРОВЛИ
Основными видами покрытий являются
Основное назначение покрытия
Состав покрытия
Крыша
Кровля
ТРЕБОВАНИЯ К ПОКРЫТИЯМ
ТРЕБОВАНИЯ К КРОВЛЕ
Крыша должна быть
В чердачных крышах образуемое между несущей и ограждающей частью покрытия помещение (чердак) используют для размещения
Мансарды
43.37M
Категория: СтроительствоСтроительство

8. Крыши

1. ПОКРЫТИЯ,КРЫШИ,КРОВЛИ

ПОКРЫТИЯ

2.

Исторически сложилось так, что в первую очередь
именно крыши определяли облик любого
населенного пункта или целого региона, в то же
время, часто обозначая и временную
принадлежность построек (эпоху создания).

3.

4.

Развитие ренессанса в странах Центральной и Западной Европы тесно связано с
формированием французского барокко. Форма крыш получает новое звучание. Теперь
они применяются с переменным уклоном скатов от 60 до 75° и от 10 до 30°, их
геометрия определяет не только новую форму, но и иное зрительное восприятие. В
1640 г. французский архитектор Ф. Мансар вводит эту архитектуру как принцип
завершения композиции здания, используя подкровельное чердачное пространство
для жилых и хозяйственных целей. Этот чердачный этаж под скатной, крутой,
изломанной крышей получает название его имени «мансарда».

5.

В эпоху классицизма и ампира с увеличением высотной застройки, повышением ее
плотности и размещением зданий по линии улиц, крыши почти исключаются из
сферы зрительного восприятия. Уклон крыши резко снижается, а подкровельное
пространство используется в основном для размещении инженерно-технических
устройств. Крыши превращаются в утилитарную необходимость, а композиционная
роль переходит к фасадной стене здания.

6.

Крыша дома – это завершающий элемент внешнего
архитектурного облика любого здания. Она
осуществляет технические функции и, в то же время,
является украшением, которое может придать дому
особый запоминающийся вид.

7.

Конструктивный элемент,
ограждающий здание
сверху, называется
покрытием.

8. Основными видами покрытий являются

• Чердачные крыши,
• Бесчердачные покрытия,
• Большепролетные плоские покрытия
• Большепролетные пространственные покрытия

9. Основное назначение покрытия

– защита здания от атмосферных осадков в
виде дождя и снега, а также от потерь тепла в
зимнее время и перегрева в летнее время.

10. Состав покрытия

Покрытие состоит из :
1. Несущих конструкций,
воспринимающих передаваемые
нагрузки от вышележащих
элементов,
2. Ограждающей части (кровли).

11. Крыша

— конструктивный элемент здания, являющийся
его верхней ограждающей частью. Она также
выполняет и несущие функции. Крышу
называют покрытием здания.

12. Кровля

• — это верхнее ограждение крыши или
покрытия здания

13.

Внешние воздействия на покрытие
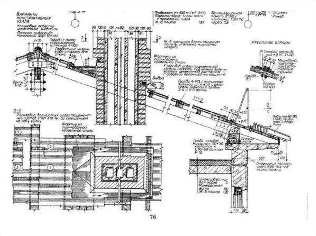
1. Постоянные нагрузки (Собственный вес)
2. Временные нагрузки ( снег, эксплуатационные нагрузки)
3. Ветер – давление
4. Ветер – разряженный воздух
5, 9. Воздействие температур
6. Атмосферная влага
7. Химически агрессивные вещества
8. Солнечная радиация
10. Влага, находящаяся в чердачном пространстве

14. ТРЕБОВАНИЯ К ПОКРЫТИЯМ

• Конструкция
покрытия
должна
обеспечивать
восприятие
постоянной
нагрузки (от собственной массы), а также
временных нагрузок (от снега, ветра и
возникающих при эксплуатации покрытия).
• Конструкции покрытия должны иметь
степень долговечности, согласованную с
нормами и классом здания.

15. ТРЕБОВАНИЯ К КРОВЛЕ

Ограждающая
часть
покрытий
(кровля),
служащая для отвода осадков, должна быть
• Водонепроницаемой,
• Влагоустойчивой,
• Стойкой против воздействия агрессивных
химических
веществ,
содержащихся
в
атмосферном воздухе и выпадающих осадках
на покрытие,
• Солнечной радиации и мороза,
• Не подвергаться короблению, растрескиванию
и расплавлению.

16. Крыша должна быть

• Прочной
• Жесткой
• Устойчивой
• Долговечной,
• Водонепроницаемой
• Огнестойкой
• Индустриальной
• Экономичной

17.

• Для обеспечения отвода осадков покрытия
устраивают с уклоном. Величина уклона
зависит от материала кровли, а также
климатических условий района строительства.
• Так, в районах с сильными снегопадами
величина уклона определяется условиями
снегоотложения и удаления снега;
• В районах с обильными дождями уклон
кровли должен обеспечивать быстрый отвод
воды;
• В южных районах уклон покрытия, а также
выбор материала кровли определяют с учетом
солнечной радиации

18.

19.

В зависимости от величины уклона крыши
бывают скатные, плоские и пологие. Уклон
ската зависит от вида кровельного материала
и климатических условий, в которых
осуществляется строительство.

20.

21.

22.

23.

24. В чердачных крышах образуемое между несущей и ограждающей частью покрытия помещение (чердак) используют для размещения

инженерного оборудования (труб центрального
отопления, вентиляционных коробов и шахт,
машинного, отделения лифтов).
Для входа на чердак делают лестницы, двери или
входные люки.
Высоту чердака для движения по нему людей
принимают не менее 190 см.
Для освещения и проветривания чердака в
крыше устраивают чердачные окна

25.

26.

Форма скатных крыш зависит от формы
здания и архитектурных соображений.
Уклон крыш выражают в градусах наклона
ската к условной горизонтальной плоскости
через тангенс этого угла в виде дроби или
процентов.

27.

28.

Таблица 1. Уклоны кровель
Градус
Процент
Градус
Процент
Градус
Процент
1
1,8
16
28,7
31
60,0
2
3,4
17
30,5
32
62,4
3
5,2
18
32,5
33
64,9
4
7,0
19
34,4
34
67,4
5
8,8
20
36,4
35
70,0
6
10,5
21
38,4
36
72,6
7
12,3
22
40,4
37
75,4
8
14,1
23
42,4
38
78,9
9
15,8
24
44,5
39
80,9
10
17,6
25
46,6
40
83,9
11
19,4
26
48,7
41
86,0
12
21,2
27
50,9
42
90,0
13
23,0
28
53,1
43
93,0
14
24,9
29
55,4
44
96,5
15
26,8
30
57,7
45
100,0

29.

Наклон крыш

30.

31.

32.

33.

34.

35.

Односкатные
Такими крышами покрывают небольшие
домики, хозяйственные постройки,
пристройки к дому, крыльцо, временные
сооружения.
Такие постройки или бесчердачные, или с
антресолями в подкрышном пространстве
Это самый простой по форме скат, который отводит воду лишь в одном направлении.
Их используют для покрытия небольших домиков, пристроек к дому, крылец,
временных сооружения и хозяйственных построек, на сооружениях простой
конструкции, производственных или складских корпусах.
Скат крыши, как правило, обращают к наветренной стороне, защищая тем самым
здание от ветра, дождя и снега.

36.

Двускатные крыши
Формируются на
малоэтажных зданиях из
двух наклонных плоскостей
и фронтонов с
противоположных сторон.
Скаты могут быть
однозначными (длина и
уклон) или разнозначными
Двускатная крыша является самой распространённой классической конструкцией. Ее
устраивают, как правило, в малоэтажных домах. Она обладает двумя скатами или
наклонными плоскостями, имеющими прямоугольную форму. К многочисленным
вариантам данного типа надо отнести крыши с равномерным или неравномерным углом
наклона ската или же размером карнизного свеса. Она состоит из двух скатов,
направленных в противоположные стороны. Треугольные торцовые стены, образующиеся
при этой форме, называются щипцами и фронтонами.

37.

Четырехскатными или шатровыми, образованными из двухскатных крыш.
Треугольные скаты в устройстве шатровой крыши называют вальмами. Фронтоны
этой крыши по всей высоте срезаются наклонной плоскостью. Она применяется в
основном только для зданий с квадратным или многоугольным планом. Все скаты
такой крыши, в виде равнобедренных треугольников, сходятся в одной точке.
Симметричность является определяющим элементом: чистые и однозначные формы
и линии, объединяющиеся на вершине. В далекие времена крутые шатровые крыши
на башнях и колокольнях служили указателями путникам на природе и ориентирами
в городе.

38.

Вальмовая крыша - одна из самых древних типов. Она четырехскатная: два ската
представляют собой трапеции, а два других, со стороны торцовых стен, - треугольники.
Характерные черты вальмовой крыши акцентируются наличием слуховых окон.
Четырехскатные крыши, в отличие от двускатных, на первый взгляд кажутся более
простыми, так как не требуют устройства щипцовых стен, однако их стропильная
система гораздо более сложная

39.

Полувальмовыми. Их отличие от четырехскатных крыш состоит в том, что наклонные
плоскости в таких крышах срезают только часть фронтона. Полувальмовые крыши
применяют там, где существует необходимость защиты фронтона от неблагоприятных
внешних воздействий.

40.

Четырехщипцовыми. В таких крышах соединяются четыре двускатные плоскости

41.

Коническими и купольными. Они устраиваются для перекрытия зданий, имеющих
по плану круглую форму

42.

43.

ВИДЫ СКАТНЫХ КРЫШ
Ломаные
Двускатные крыши, в которых скаты, в целях
увеличения подкровельного пространства, «переламываются»
по одинаковой или различной длинам
Крещатые
Образуются пересечением двух двускатных
крыш
Бочки Двускатные крыши, напоминающие по форме луковицу
Бочка крещатая
Формируется пересечением двух крыш
«бочек»

44.

Четырехскатные вальмовые (полувальмовые) Один из более распространенных
видов крыш. У таких крыш 2 ската - трапециевидные (по длинным сторонам) и два
- треугольные (по коротким сторонам). В полувальмовых крышах вальма
располагается на неполную высоту кровли
Палатка Четырехскатные крыши, в которых плоскости кровли сходятся в острую
верхушку пирамиды над прямоугольным помещением
Колпак четырехгранной крыши
Четырехгранная пирамида с отношением стороны квадрата основания к высоте не
более 1:1
Шатровая
Крыша из четырех или более скатов над центросимметричным в
плане помещением

45.

• В зданиях небольшой ширины часто
устраивают односкатные крыши .
• Крыша здания со стоком воды на две
противоположные стороны называется
двускатной.
• Ребро двугранного угла, образуемого в
вершине крыши двумя скатами, называется
коньком

46.

а – крыша односкатная;
б – крыша двускатная;
в – крыша вальмовая;
г – крыша полувальмовая
Пояснения элементов крыши
1. щипец;
2. конек;
3. скат;
4. полувальма;
5. ребро;
6. ендова;
7. светелка.

47.

и – крыша неравнозначная , двускатная;
к – крыша луковично-купольная;
л – усложненная полувальмовая крыша;
м – крыша четырехскатная (палатка);

48.

д, е– крыши шатровые;
з, ж – крыша сложная, многоскатная;

49.

н - крыша восьмискатная;
о – крыша крещатая;
п – крыша трехскатная;
р – крыша «колпак»четырехскатная;
с – крыша бочка крещатая;

50.

ЧАСТИ КРЫШИ
1 Край крыши у фронтона
2 Свес крыши
3 Конек
4 Фронтон (щипец)
5 Вальма
6 Разжелобок (ендова)
7 Слуховое (мансардное) окно
8 Декоративный фронтон
9 Световой фонарь

51.

52.

10 Двускатная (остроконечная)
11 Вальмовая
12 Полувальмовая
13 Гамбрель (США), мансардная с фронтоном (Великобритания)
14 Мансардная
15 Односкатная

53.

16 Со световым фонарем
17 Плоская со скатами
18 Шедовая
19 М-образная с ендовой
20 Пентхаус
21 Дугообразная
22 Стрельчатая (килевидная)

54.

23 Цилиндрическая
24 Плоская
25 Вилообразная
26 Гиперболический параболоид

55.

а – односкатная; б – двухскатная; в – крыша с мансардой; г – шатровая,
Пересечение скатов, образующих выступающий наклонный угол, называется
накосным ребром, а западающий угол – ендовой или разжелобкой.
Нижняя часть ската называется спуском, а нижняя кромка ската – обрезом
кровли.
Торец двухскатной крыши может быть решен в виде фронтона ( или щипца).
Фронтон образуется в том случае, если скаты крыши перекрывают торцовую
стену дома и выступают перед ней

56.

57.

58.

59.

Деревянная мансардная крыша для жилого
дома конструкции инженера Г. Судейкина,
1914 г.

60.

Элементы крыши
10 Карниз
11 Тимпан
12 Флерон
13 Фиал
14 Дымоход (общий)
15 Дымовая труба
16 Зонт над дымовой трубой
17 Боковая стенка дымохода
18 Ступенчатый фартук
19 Коньковая черепица
20 Черепичное ребро ската
21 Модильоны
22 Чешуйчатая черепица
23 Водосточный желоб под
карнизом
24 Кровельный разжелобок
25 Водосточная труба
26 Фронтон
27 Фигурный фронтон
28 Голландский фронтон
29 Декоративная штукатурка

61.

62.

63.

64.

65.

66.

67.

д, е – общий вид и план крыши дома;
1 – свес крыши; 2 – слуховое окно; 3 – тимпан фронтона; 4 – фронтон; 5 – конек; 6
– скат; 7 – щипец; 8 – ендова; 9 – накосное ребро; 10 – вальма; 11 – полувальма;
12 – приточное вентиляционное отверстие; 13 – вытяжное отверстие; 14 – снег и
наледь на карнизе; 15 – решетка жалюзи
Линия пересечения скатов крыши (линии ендов и накосных ребер) проходит по
биссектрисам углов между стенами ( е, ж), поэтому при построении плана крыши
необходимо руководствоваться этим правилом, если дом имеет прямые углы, то
проекции накосных ребер чертят в плане под углом 45°.

68.

ж – пример построения ската крыши;
1 – свес крыши; 2 – слуховое окно; 5 – конек; 6 – скат; 7 – вальма; 8 – ендова; 9 –
накосное ребро;
Линия пересечения скатов крыши (линии ендов и накосных ребер) проходит по
биссектрисам углов между стенами ( е, ж), поэтому при построении плана крыши
необходимо руководствоваться этим правилом, если дом имеет прямые углы, то
проекции накосных ребер чертят в плане под углом 45°.

69.

и– полувальмовые торцы двускатной крыши;
11 – полувальма;
Крыша квадратного или многогранного в плане здания имеет треугольные скаты –
вальмы.
Если наклонный скат срезает не весь торец двускатной крыши, а только верхнюю или
нижнюю ее часть, то неполный торцовый скат называют полувальмой (

70.

к – полувальмовые торцы
двускатной крыши;
9 – накосное ребро;
11 – полувальма;
Линия пересечения двух скатов крыши, образующих
выступающий двугранный угол, называется накосным ребром

71.

л, м,– схемы развертывания чердаков и воздушных прослоек крыши;
1 – свес крыши; 2 – слуховое окно; 3 – тимпан фронтона; 4 – фронтон; 5 – конек; 6 –
скат; 7 – щипец; 8 – ендова; 9 – накосное ребро; 10 – вальма; 11 – полувальма; 12 –
приточное вентиляционное отверстие; 13 – вытяжное отверстие; 14 – снег и наледь
на карнизе; 15 – решетка жалюзи

72.

н, о – схемы развертывания чердаков и воздушных прослоек крыши;
п – схема образования наледи на карнизе
12 – приточное вентиляционное отверстие;
13 – вытяжное отверстие;
14 – снег и наледь на карнизе;

73.

р – схема слухового окна;
с – обозначения уклонов крыши;
2 – слуховое окно; 15 – решетка жалюзи

74.

Внутри
чердака
целесообразно
устраивать
жилые
мансардные помещения, которые в каменных зданиях
отделяют от чердака брандмауэрами, а в деревянных –
трудносгораемыми перегородками.
Для вентиляции используют слуховые окна и окна,
устраиваемые во фронтонах и полуфронтонах полувальмовых
крыш, заполняемых створками типа “жалюзи”, хорошо
пропускающих воздух и не допускающих попадания в чердак
дождевой воды. Слуховые окна размещают на высоте 1-1,2 м
от уровня чердачного перекрытия.

75.

76.

Несущие конструкции скатных крыш состоят из стропил и
обрешетки.
Стропила – основная несущая конструкция крыши, которая,
опираясь на стены или отдельные опоры здания, определяет
количество скатов и угол их наклона. Стропила выполняют из
дерева в виде бревен, брусьев или досок. Все сопряжения
отдельных элементов стропил делают с помощью врубок и
металлических креплений (скоб, болтов, гвоздей, хомутов).
Стропила бывают наклонными и висячими.
Наклонными называют стропила, основные элементы которых –
стропильные ноги – работают как наклонно положенные балки.
Длина таких балок должна быть не более 6,5 м (максимальная
длина стандартной деловой древесины).
Висячие стропила представляют собой простейший тип
стропильной фермы, где наклонные стропильные ноги передают
распор на затяжку (нижний пояс фермы).

77.

НАГРУЗКИ НА КРЫШУ

78.

79.

80.

1.
2.
3.
4.
5.
6.
7.
8.
9.
конек крыши;
скат крыши;
наклонное ребро крыши;
разжелобок крыши;
карнизный свес крыши;
фронтальный свес крыши;
желоб крыши;
водосточная труба крыши;
дымоход на крыше.

81.

Схема наслонных стропил

82.

83.

Детали деревянных стропил

84.

85.

Конструкции стропил в вальме

86.

а) Узел опирания накосной
ноги на шпренгель
б) Узел опирания накосной
ноги на стропильные ноги
в) Узел опирания накосной
ноги на мауэрлат
г) Врубка нарожников

87.

88.

Конструкция крыши с наслонными стропилами

89.

Стропила с затяжкой – экономически оправданная длина элементов

90.

Наслонные стропила с двумя стойками

91.

Стропила с ригелем- затяжкой

92.

Беспрогонные стропила

93.

Стропила с двойным ригелем затяжкой

94.

95.

Конструкция слухового окна в
крыше с наслонными
стропилами

96.

97.

98.

99.

100.

Схемы стропил односкатных кровель: а — без подкоса; б — с подкосом;
в — с одним рядом стоек и подкосами; г — с двумя рядами стоек и подкосами

101.

Наклонные стропила – односкатных крыш;
1 – лежень; 2 – мауэрлат; 3 – подкос; 4 – стропильная нога; 5 – стена; 6 – чердачное
перекрытие; 7 – стойка; 8 – прогон; 9 – распорка; 10 – схватка; 11 – кобылка; 12 –
накосная (диагональная) стропильная нога; 13 – нарожник; 14 – скоба; 15 – болт

102.

Наклонные стропила двускатных крыш;
1 – лежень; 2 – мауэрлат; 3 – подкос; 4 – стропильная нога; 5 – стена; 6 – чердачное
перекрытие; 7 – стойка; 8 – прогон; 9 – распорка; 10 – схватка; 11 – кобылка; 12 –
накосная (диагональная) стропильная нога; 13 – нарожник; 14 – скоба; 15 – болт
Вальмовый скат образуется с помощью диагональных (накосных) стропильных
ног и нарожников – укороченных стропильных ног, опирающихся на мауэрлат
и диагональную стропильную ногу. Шаг стропильных ног выбирают из расчета
оптимального пролета для досок или брусьев. Обычно его принимают равным
0,7 м для дощатой обрешетки и 1,2-1,5 м для брусчатой.

103.

план стропил;
1 – лежень; 2 – мауэрлат; 3 – подкос; 4 – стропильная нога; 5 – стена; 6 – чердачное
перекрытие; 7 – стойка; 8 – прогон; 9 – распорка; 10 – схватка; 11 – кобылка; 12 –
накосная (диагональная) стропильная нога; 13 – нарожник; 14 – скоба; 15 – болт
Вальмовый скат образуется с помощью диагональных (накосных) стропильных ног
и нарожников – укороченных стропильных ног, опирающихся на мауэрлат и
диагональную стропильную ногу. Шаг стропильных ног выбирают из расчета
оптимального пролета для досок или брусьев. Обычно его принимают равным 0,7 м
для дощатой обрешетки и 1,2-1,5 м для брусчатой.

104.

ВИСЯЧИЕ СТРОПИЛА (СТРОПИЛЬНЫЕ ФЕРМЫ)

105.

ВИСЯЧИЕ СТРОПИЛА (СТРОПИЛЬНЫЕ ФЕРМЫ)
а – с поднятой затяжкой;
1 – стропильная нога;
2 – мауэрлат;
3 – затяжка;
8 - болт

106.

ВИСЯЧИЕ СТРОПИЛА (СТРОПИЛЬНЫЕ ФЕРМЫ)
б – с затяжкой, используемой для подвески чердачного перекрытия;
1 – стропильная нога; 2 – мауэрлат; 3 – затяжка; 4 – подвесная бабка; 5 – распорка; 6 –
стальная стойка фермы; 7 – подкос; 8 – болт; 9 – коротыш; 10 – деревянная накладка; 11 –
хомут; 12 – скоба

107.

ВИСЯЧИЕ СТРОПИЛА (СТРОПИЛЬНЫЕ ФЕРМЫ)
в – с подвесной бабкой;
1 – стропильная нога; 2 – мауэрлат; 3 – затяжка; 4 – подвесная бабка; 5 – распорка; 6 –
стальная стойка фермы; 7 – подкос; 8 – болт; 9 – коротыш; 10 – деревянная накладка; 11 –
хомут; 12 – скоба

108.

ВИСЯЧИЕ СТРОПИЛА (СТРОПИЛЬНЫЕ ФЕРМЫ)
г – с подвесной бабкой и подкосами;
1 – стропильная нога; 2 – мауэрлат; 3 – затяжка; 4 – подвесная бабка; 5 – распорка; 6 –
стальная стойка фермы; 7 – подкос; 8 – болт; 9 – коротыш; 10 – деревянная накладка; 11 –
хомут; 12 – скоба

109.

ВИСЯЧИЕ СТРОПИЛА (СТРОПИЛЬНЫЕ ФЕРМЫ)
а – с поднятой затяжкой;
б – с затяжкой, используемой для подвески чердачного перекрытия;
в – с подвесной бабкой;
г – с подвесной бабкой и подкосами;
1 – стропильная нога; 2 – мауэрлат; 3 – затяжка; 4 – подвесная бабка; 5 – распорка; 6 –
стальная стойка фермы; 7 – подкос; 8 – болт; 9 – коротыш; 10 – деревянная накладка; 11 –
хомут; 12 – скоба

110.

ВИСЯЧИЕ СТРОПИЛА (СТРОПИЛЬНЫЕ ФЕРМЫ)
д – с двумя подвесными бабками;
1 – стропильная нога;
2 – мауэрлат; 3 – затяжка;
4 – подвесная бабка;
5 – распорка;
6 – стальная стойка фермы;
7 – подкос; 8 – болт; 9 – коротыш; 10
– деревянная накладка;
11 – хомут; 12 – скоба

111.

ВИСЯЧИЕ СТРОПИЛА (СТРОПИЛЬНЫЕ ФЕРМЫ)
е – металло-деревянная ферма;
1 – стропильная нога;
2 – мауэрлат;
3 – затяжка;
4 – подвесная бабка;
5 – распорка;
6 – стальная стойка фермы;
7 – подкос;
8 – болт;
9 – коротыш;
10 – деревянная накладка;
11 – хомут;
12 – скоба

112.

Схемы расположения стропил
1. раскос;
2. затяжка одинарная;
3. доски-накладки;
4. подкладки;
5. стена наружная;
6. накладки

113.

ВЫБОР СЕЧЕНИЯ СТРОПИЛЬНЫХ НОГ

114.

Стропила наклонные
1. раскос;
2. мауэрлат;
3. скрутки;
4. стена наружная;
5. стена внутренняя;
6. врубка;
7. лежень;
8. листы рубероида

115.

Допустимые расстояния между стропилами

116.

117.

СКАТНЫЕ КРЫШИ

118.

119.

120.

121.

122.

123.

124.

125.

126.

127.

128.

Конструкция вальмовой крыши с тремя фронтонами:
1 - стропила фронтонов; 2 - затяжки; 3 - балки перекрытия; 4 - коньковый
прогон; 5 - стойка

129.

Если эти же стропила стыковать не с коньком, а с крайними стропилами основной
двускатной крыши, то получается так называемая датская крыша. При этом во
фронтонной части вальма не доходит до конька кровли и образуется так называемый
выступ, который зашивается листовыми материалами. В выступе часто устраивают
небольшие окошки, служащие для освещения чердачного пространства. Размеры
выступа зависят от его глубины, уклона вальмы и высоты двускатной крыши по коньку.
Конструкция датской крыши:
1 - усиленная стропильная нога; 2 - опорная доска; 3 - усиливающий ригель с
вкладышем; 4 - вальмовое стропило; 5 - верхняя обвязка стены; 6 - проставки

130.

131.

132. Мансарды

Мансарду можно оборудовать под любой конфигурацией крыши, но
эффективность использования полезной площади будет различной
Использование полезной площади в
мансардных помещениях:
1 - ограничения полезной площади при
прямой крыше; 2 - увеличение полезной
площади при ломаной крыше; 3 неиспользуемые площади; А - соотношение
используемой и неиспользуемой площади
при ломаной крыше; Б - увеличение
используемой площади при
четырехщипцовой конструкции крыши
Геометрические формы мансард могут быть
различными: иметь треугольный или
ломаный силуэт, быть симметричными и
несимметричными, располагаться по всей
ширине здания или только по одну сторону
от его продольной оси.

133.

Схемы бесчердачных покрытий
С наружным отводом воды с
горизонтальным и
наклонным потолком
С внутренним отводом воды с
горизонтальным и
наклонным потолком

134.

135.

Схемы вентилируемых бесчердачных покрытий

136.

Конструкция вентилируемого бесчердачного покрытия с наружным водоотводом

137.

Конструкция вентилируемого бесчердачного покрытия с отверстиями в
несущей легкобетонной плите
1. Вентиляционная шахта, 2. Зонт из кровельной стали, 3.Защитная сетка,
4.Гидроизоляционный ковер, 5.Каналы осушающей вентиляции,
6. Лекобетонная панель, 7. Изоляция, 8. Раствор, 9. Панель

138.

Принципиальные схемы сборных железобетонных совмещенных покрытий ( крыш)

139.

Чердачные сборные железобетонные покрытия

140.

Чердачные сборные железобетонные покрытия
Тип с безрулонной гидроизоляцией

141.

Уклоны кровель. Чтобы вода быстро удалялась с кровли, ее скатам
придают уклон, который обычно выражают в градусах или процентах и
измеряют с помощью геодезических инструментов. Уклон обозначает угол
наклона ската к горизонту (табл. 1). Чем больше угол, тем крыша круче. У
современных зданий крыши, как правило, пологие.

142.

График для выбора кровельного
материала в зависимости от уклона
крыши
1 - стружка, щепа, гонт; 2 - черепица,
асбестоцементные листы; 3 - рулонные
материалы четырехслойных кровель с
защитным слоем гравия, втопленного в
горячую мастику, а также лотки ендов
таких же кровель; 4 - рулонные материалы
трехслойных кровель с защитным слоем
гравия, втопленного в горячую мастику; 5 рулонные материалы трехслойных
кровель без защитного слоя; 6 - рулонные
материалы, наклеиваемые на горячих и
холодных мастиках двухслойных кровель;
7 - волнистые асбестоцементные листы
унифицированного профиля; 8 - черепица;
9 - асбестоцементные листы усиленного
профиля; 10 - листовая сталь; 11 асбестоцементные листы обыкновенного
профиля; h - высота конька; l - заложение,
12 - расстояние по горизонтали (проекция)
от конька до карнизного свеса
English     Русский Правила