34.00M

Фонтан итог

1.

ОБЩЕСТВО С ОГРАНИЧЕННОЙ ОТВЕТСТВЕННОСТЬЮ
"ТЕХНОСТРОЙГРАД
ИНН: 7729457983
КПП: 771901001 ОГРН: 1157746363378; Юр. Адрес: 105118, Город Москва,
вн.тер. г.
Муниципальный Округ Соколиная Гора, ул Кирпичная, дом 20, строение 7.
Разработка проектно-сметной документации на устройство фонтана в
рамках развития территории и размещение комплекса сооружений
кинокластера «КИНОПАРК МОСКИНО» для реализации киносъемочного
процесса и
организации
многофункциональногоансамбля
пространства
Раздел «Эскизный проект
архитектурно-скульптурного
фонтана»
Художественная концепция и форэкскиз архитектурно-скульптурного
ансамбля фонтана
Шифр: КП-186/24-К
г.
Москва

2.

ОБЩЕСТВО С ОГРАНИЧЕННОЙ ОТВЕТСТВЕННОСТЬЮ
"ТЕХНОСТРОЙГРАД
ИНН: 7729457983
КПП: 771901001 ОГРН: 1157746363378; Юр. Адрес: 105118, Город Москва,
вн.тер. г.
Муниципальный Округ Соколиная Гора, ул Кирпичная, дом 20, строение 7.
Разработка проектно-сметной документации на устройство фонтана в
рамках развития территории и размещение комплекса сооружений
кинокластера «КИНОПАРК МОСКИНО» для реализации киносъемочного
процесса и
организации
многофункциональногоансамбля
пространства
Раздел «Эскизный проект
архитектурно-скульптурного
фонтана»
Художественная концепция и форэкскиз архитектурно-скульптурного
ансамбля фонтана
Шифр: КП-186/24-К
Генеральный директор
В.А. Асташев
г.
Москва

3.

Художественная
концепция
скульптуры
фонтана
Устройство фонтана в рамках развития
территории и размещение комплекса
сооружений кинокластера «КИНОПАРК
ООО «ТСГ»
Художественная концепция
скульптуры фонтана

4.

Художественная
концепция фонтана
Устройство фонтана в рамках развития
территории и размещение комплекса
сооружений кинокластера «КИНОПАРК
ООО «ТСГ»
Художественная концепция
скульптуры фонтана

5.

Форэскиз
Устройство
фонтана
Устройство фонтана в рамках развития
территории и размещение комплекса
сооружений кинокластера «КИНОПАРК
ООО «ТСГ»
Форэскиз
Устройство фонтана

6.

О
проект
е
Устройство фонтана в рамках развития
территории и размещение комплекса
сооружений кинокластера «КИНОПАРК
ООО «ТСГ»
О проекте

7.

План
Устройство фонтана в рамках развития
территории и размещение комплекса
сооружений кинокластера «КИНОПАРК
ООО «ТСГ»
План

8.

Динамическая композиция
вписанная в
существующую застройку.
Вид днем.
Устройство фонтана в рамках развития
территории и размещение комплекса
сооружений кинокластера «КИНОПАРК
ООО «ТСГ»
Динамическая композиция

9.

Динамическая композиция
вписанная в
существующую застройку.
Вид ночью.
Устройство фонтана в рамках развития
территории и размещение комплекса
сооружений кинокластера «КИНОПАРК
ООО «ТСГ»
Динамическая композиция

10.

Описание
композиции
Устройство фонтана в рамках развития
территории и размещение комплекса
сооружений кинокластера «КИНОПАРК
ООО «ТСГ»
Описание композиции

11.

Пластическое решение (авторская модель) в твердом
материале в масштабе 1:10
Устройство фонтана в рамках развития
территории и размещение комплекса
сооружений кинокластера «КИНОПАРК
ООО «ТСГ»
Авторская модель

12.

Визуализация композиции
Устройство фонтана в рамках развития
территории и размещение комплекса
сооружений кинокластера «КИНОПАРК
ООО «ТСГ»
Визуализация композиции

13.

Устройство фонтана в рамках развития
территории и размещение комплекса
сооружений кинокластера «КИНОПАРК
ООО «ТСГ»
Подсветка фонтана

14.

Визуализация композиции в
существующем положении.
До/После
Устройство фонтана в рамках развития
территории и размещение комплекса
сооружений кинокластера «КИНОПАРК
ООО «ТСГ»
Визуализация

15.

Визуализация композиции в
существующем положении.
До/После
Устройство фонтана в рамках развития
территории и размещение комплекса
сооружений кинокластера «КИНОПАРК
ООО «ТСГ»
Визуализация

16.

Схема ситуационного плана участка
Технико-экономические показатели

Наименование
Площадь,
кв.м.
1
Общая площадь выполняемых работ
7 107
2
Фонтан
72,4
3
Благоустройство
7 034,6
Устройство фонтана в рамках развития
территории и размещение комплекса
сооружений кинокластера «КИНОПАРК
Условные обозначения:
ООО «ТСГ»
Схема ситуационного плана участка

17.

Технология и этапы монтажа фонтана
1 Этап - Геодезическая разметка.
Необходимо определить вертикальные отметки по территории благоустройства согласно
разработанному проекту. В соответствии с разметкой вести разработку котлована для устройства
песчаной подушки фонтана. Так называемый «пирог» основания чаши может меняться в зависимости
от типа грунта территории благоустройства.
2 Этап – Формирование основания чаши.
До начала работ по устройству основания чаши фонтана необходимо понимать состав грунтов,
уровень грунтовых вод и степень пучения грунта в зимний период.
При низком уровне вод и суглинистых почвах пирог основания состоит из:
- песчано-гравийной подушки;
- черновое бетонное основание толщиной не менее 70 мм.,
- гидроизоляционный слой бетона (монтируется рулонная гидроизоляция при помощи праймера);
- устанавливается опалубка под отливку плиты основания;
- армируется основание (при толщине более 15 см. необходимо двойное армирование, обязательно
соблюдать минимальное расстояние до контура арматуры 40 мм. от стен бетонных конструкций).
Толщина плиты основания зависит от размеров чаши фонтана и в толщину может достигать от 100 до
300 мм.
Отливка бетона производится с обязательным вибрированием. Используемая марка бетона - Б300 В8.
При армировании необходимо обеспечить вывод концов арматуры для устройства борта фонтана, в
точках соответствующих технологическим отверстиям между сегментами борта. Основание
монтируется на плиточный клей.
3 Этап – Внутренняя гидроизоляция
После монтажа основания производятся работы по гидроизоляции внутренней поверхности чаши
фонтана. Гидроизоляция осуществляется в несколько слоев:
1. Нанесение состава ПЕНЕБАР в зоне сопряжения внутренней стенки борта и дна чаши
фонтана.
2. После нанесения гидроизоляционного контура ПЕНЕБАР, наносятся 2 слоя обмазочной проникающей
гидроизоляции типа ПЕНЕТРОН. Которая за счет щелочной структуры позволяет обеспечить большую
прочность бетона и исключить протечки.
Устройство фонтана в рамках развития
территории и размещение комплекса
сооружений кинокластера «КИНОПАРК
ООО «ТСГ»
Этап 1
Этап 2
Этап 3
Технология и этапы монтажа
фонтана

18.

Технология и этапы монтажа фонтана
4 Этап – Монтаж борта чаши.
Борт фонтана устанавливается на основание при помощи плиточного
клея на бетонной основе.
Обязательно необходимо провести прокладку гидроизоляционного
контура шнуром типа ПЕНЕБАР вдоль вертикального выпуска концов
арматуры до заливки бетона в вертикальную часть борта.
Вертикальная часть борта состоит из 2 элементов, которые являются
несъемной опалубкой.
Единожды установленные в рабочее положение элементы борта в
дальнейшем не демонтируются.
После заливки борта бетоном на горизонтальную поверхность верхней
части борта с помочью плиточного клея монтируется накрывная плита,
состоящая из сегментов.
Все стыки и технологические зазоры необходимо затереть с
применением затирки типа CERESIT.
Цвет затирки лучше использовать на тон светлее, чем цвет материла
борта фонтана.
5 Этап – Финишная облицовка.
Внутренняя поверхность борта фонтана имеет эстетический вид и не
нуждается в дополнительной облицовке. На дно чаши укладывается
стеклянная мозаика или керамическая плитка с высокими показателями
устойчивости к перепадам температур.
Этап 4
Этап 4
Этап 4
Этап 5
Устройство фонтана в рамках развития
территории и размещение комплекса
сооружений кинокластера «КИНОПАРК
ООО «ТСГ»
Технология и этапы монтажа
фонтана

19.

Устройство фонтана в рамках развития
территории и размещение комплекса
сооружений кинокластера «КИНОПАРК
ООО «ТСГ»
Фрагмент генплана

20.

Устройство фонтана в рамках развития
территории и размещение комплекса
сооружений кинокластера «КИНОПАРК
ООО «ТСГ»
Разрез 1-1

21.

Устройство фонтана в рамках развития
территории и размещение комплекса
сооружений кинокластера «КИНОПАРК
ООО «ТСГ»
Разрез 2-2

22.

Устройство фонтана в рамках развития
территории и размещение комплекса
сооружений кинокластера «КИНОПАРК
ООО «ТСГ»
Схема расстановки баз (Тип
Б1); А-А

23.

Устройство фонтана в рамках развития
территории и размещение комплекса
сооружений кинокластера «КИНОПАРК
ООО «ТСГ»
Схема расстановки элементов борта
(Тип С1; С2); Б-Б

24.

Устройство фонтана в рамках развития
территории и размещение комплекса
сооружений кинокластера «КИНОПАРК
ООО «ТСГ»
Схема облицовки дна фонтана,
облицовка цоколя

25.

Устройство фонтана в рамках развития
территории и размещение комплекса
сооружений кинокластера «КИНОПАРК
ООО «ТСГ»
ТП

26.

Устройство фонтана в рамках развития
территории и размещение комплекса
сооружений кинокластера «КИНОПАРК
ООО «ТСГ»
Перспектива (колористическое
решение)

27.

Устройство фонтана в рамках развития
территории и размещение комплекса
сооружений кинокластера «КИНОПАРК
ООО «ТСГ»
План чаши фонтана

28.

Устройство фонтана в рамках развития
территории и размещение комплекса
сооружений кинокластера «КИНОПАРК
ООО «ТСГ»
План ТП

29.

Устройство фонтана в рамках развития
территории и размещение комплекса
сооружений кинокластера «КИНОПАРК
ООО «ТСГ»
Чаша фонтана

30.

Устройство фонтана в рамках развития
территории и размещение комплекса
сооружений кинокластера «КИНОПАРК
ООО «ТСГ»
Система фильтрации

31.

Устройство фонтана в рамках развития
территории и размещение комплекса
сооружений кинокластера «КИНОПАРК
ООО «ТСГ»
Чаша фонтана.
Кольцевой распределитель

32.

Устройство фонтана в рамках развития
территории и размещение комплекса
сооружений кинокластера «КИНОПАРК
ООО «ТСГ»
Чаша фонтана.
Кольцевой распределитель

33.

Устройство фонтана в рамках развития
территории и размещение комплекса
сооружений кинокластера «КИНОПАРК
ООО «ТСГ»
Чаша фонтана.
Пенные струи

34.

Устройство фонтана в рамках развития
территории и размещение комплекса
сооружений кинокластера «КИНОПАРК
ООО «ТСГ»
Чаша фонтана.
Пенные струи

35.

Устройство фонтана в рамках развития
территории и размещение комплекса
сооружений кинокластера «КИНОПАРК
ООО «ТСГ»
Чаша фонтана. Центр

36.

Устройство фонтана в рамках развития
территории и размещение комплекса
сооружений кинокластера «КИНОПАРК
ООО «ТСГ»
Чаша фонтана. Центр

37.

Устройство фонтана в рамках развития
территории и размещение комплекса
сооружений кинокластера «КИНОПАРК
ООО «ТСГ»
Чаша фонтана. Центр

38.

Устройство фонтана в рамках развития
территории и размещение комплекса
сооружений кинокластера «КИНОПАРК
ООО «ТСГ»
Чаша фонтана. Центр

39.

Устройство фонтана в рамках развития
территории и размещение комплекса
сооружений кинокластера «КИНОПАРК
ООО «ТСГ»
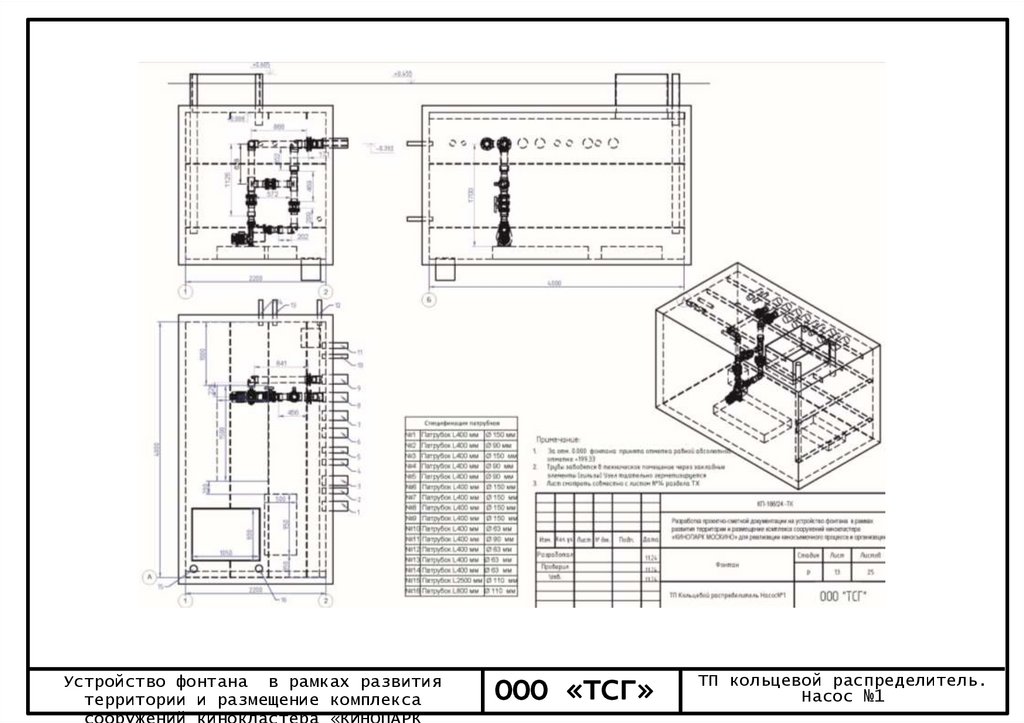
ТП кольцевой распределитель.
Насос №1

40.

Устройство фонтана в рамках развития
территории и размещение комплекса
сооружений кинокластера «КИНОПАРК
ООО «ТСГ»
ТП кольцевой распределитель.
Насос №1

41.

Устройство фонтана в рамках развития
территории и размещение комплекса
сооружений кинокластера «КИНОПАРК
ООО «ТСГ»
ТП кольцевой распределитель.
Насос №2

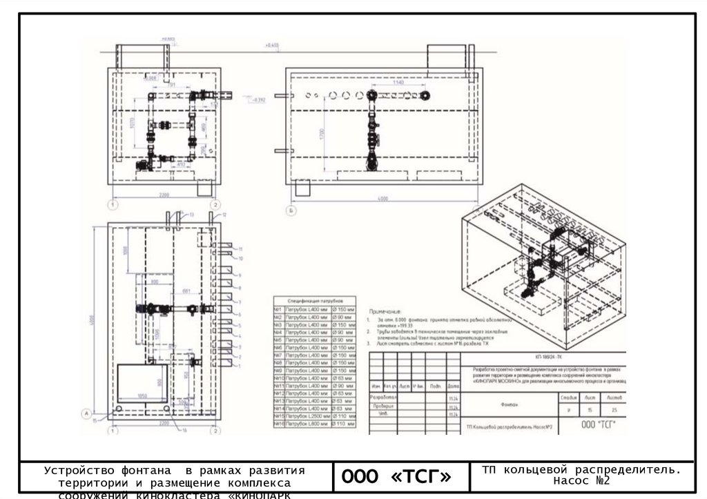
42.

Устройство фонтана в рамках развития
территории и размещение комплекса
сооружений кинокластера «КИНОПАРК
ООО «ТСГ»
ТП кольцевой распределитель.
Насос №2

43.

Устройство фонтана в рамках развития
территории и размещение комплекса
сооружений кинокластера «КИНОПАРК
ООО «ТСГ»
ТП пенные струи

44.

Устройство фонтана в рамках развития
территории и размещение комплекса
сооружений кинокластера «КИНОПАРК
ООО «ТСГ»
ТП пенные струи

45.

Устройство фонтана в рамках развития
территории и размещение комплекса
сооружений кинокластера «КИНОПАРК
ООО «ТСГ»
ТП система фильтрации

46.

Устройство фонтана в рамках развития
территории и размещение комплекса
сооружений кинокластера «КИНОПАРК
ООО «ТСГ»
ТП система фильтрации

47.

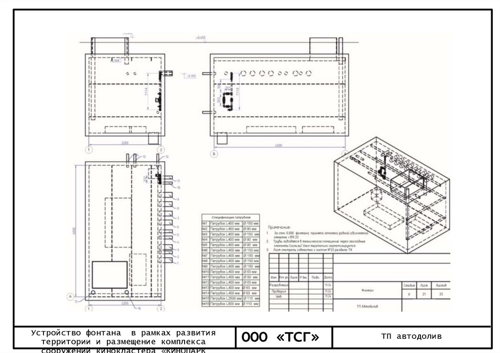
Устройство фонтана в рамках развития
территории и размещение комплекса
сооружений кинокластера «КИНОПАРК
ООО «ТСГ»
ТП автодолив

48.

Устройство фонтана в рамках развития
территории и размещение комплекса
сооружений кинокластера «КИНОПАРК
ООО «ТСГ»
ТП автодолив

49.

Устройство фонтана в рамках развития
территории и размещение комплекса
сооружений кинокластера «КИНОПАРК
ООО «ТСГ»
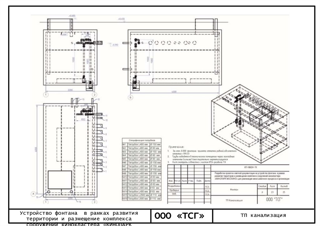
ТП канализация

50.

Устройство фонтана в рамках развития
территории и размещение комплекса
сооружений кинокластера «КИНОПАРК
ООО «ТСГ»
ТП канализация

51.

Устройство фонтана в рамках развития
территории и размещение комплекса
сооружений кинокластера «КИНОПАРК
ООО «ТСГ»
Трасса
English     Русский Правила