1.66M
Категория:
Информатика
Похожие презентации:
Решение профессиональных задач в excel: прямая и обратная геодезическая задачи
Автоматизированные информационные системы, их задачи и функции. Лекция 4
Предмет и задачи информатики. Информационные системы. Информационные технологии. Информационные революции
Информационная безопасность и ее задачи
Интеллектуальные информационные системы. Задача о ходе коня
Система формирования режима информационной безопасности. Задачи информационной безопасности общества
Информация и информационные процессы. Задачи
Основные задачи управления организацией как предмет автоматизации в современных информационных системах
Разработка информационной системы управления задачами для малого и среднего предприятия
Задачи. Системы счисления
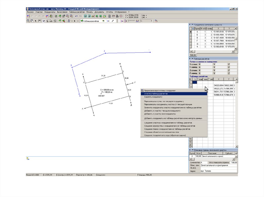
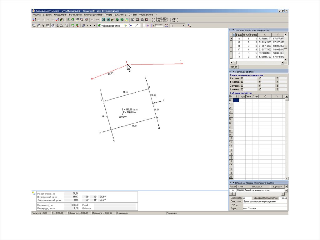
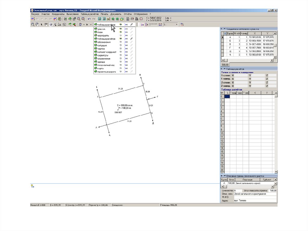
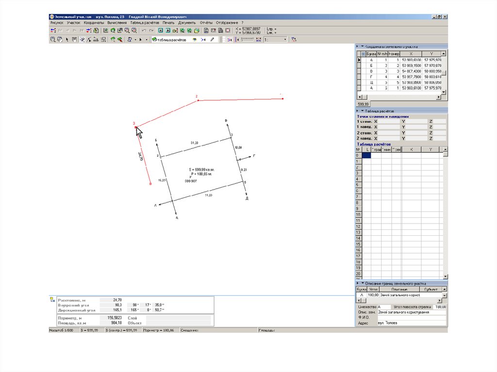
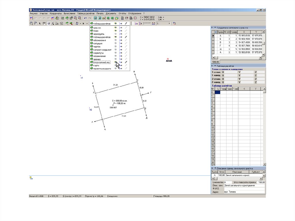
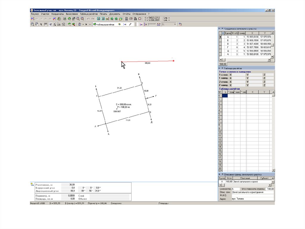
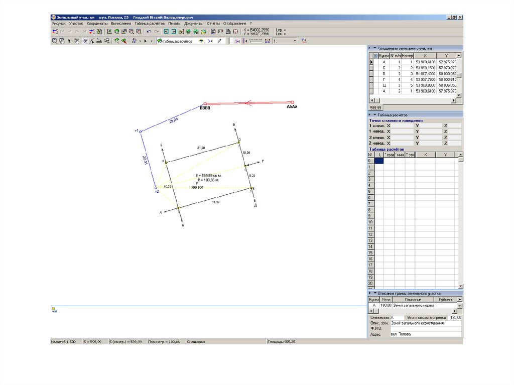
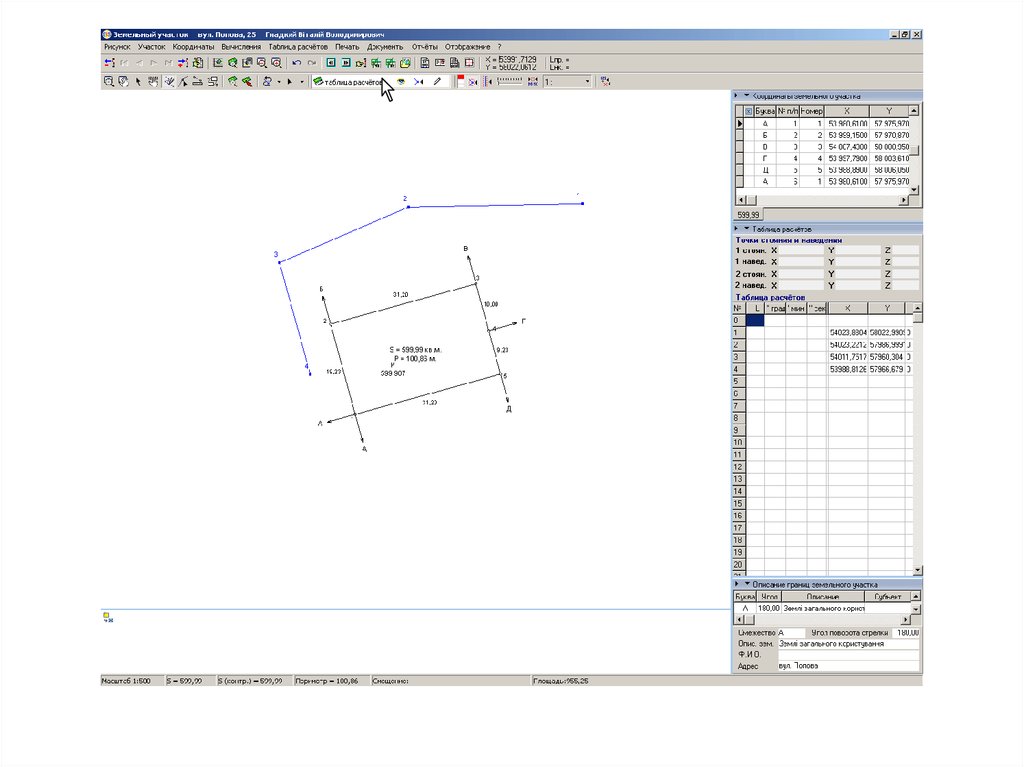
Обратная геодезичекая задача. Геодезическая информационная система
1.
Геодезическая информационная система 6
Обратная геодезичекая задача
Геодезическая
информационная система 6
English
Русский
Правила