4.69M
Категория:
Инженерная графика
Похожие презентации:
ООО «Петропласт». Тракторное крыло
Реконструкция агрегатного участка ремонтной мастерской в ООО «Суйдинское»
Чертежи и спецификации в сметном деле ООО НПП «АВС-Н»
Армокаменные конструкции. Новые возможности ООО «ЛИРА САПР»
Демонстрационный отчет по результатам измерений для ООО МЗ «Тонар»
Реконструкция ремонтной мастерской в ООО «Автоколонна 254» Ленинградской области
Совершенствование организации технического обслуживания и ремонта техники в ООО «Кипенская СХТ» Ленинградской области
Реконструкция ремонтной мастерской в ООО «Новоладожский» с разработкой установки для разборки-сборки соединений деталей
Организация производственного участка по текущему ремонту автомобилей на ООО «Регион сервис» в рамках ВКР
Техническое перевооружение агрегатного участка в дилерском центре Volkswagen ООО "Автосфера"
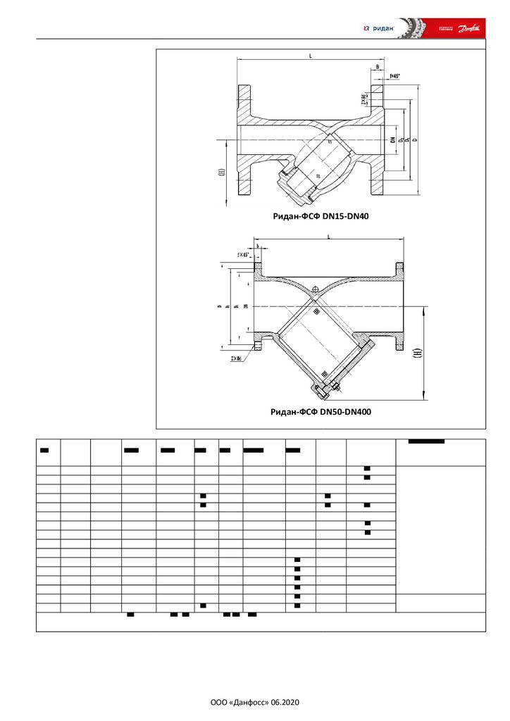
ООО «Данфосс»
1.
ООО «Данфосс» 06.2020
2.
ООО «Данфосс» 06.2020
3.
ООО «Данфосс» 06.2020
4.
∆Р = (
°
°
ООО «Данфосс» 06.2020
English
Русский
Правила