Дизайн-проект усадьбы Трубецских в Хамовниках
43.90M
Категория: ИскусствоИскусство

Дизайн-проект усадьбы Трубецских в Хамовниках

1. Дизайн-проект усадьбы Трубецских в Хамовниках

ФИО:
Кручинина Маргарита Владимировна,
Боженко Диана Сергеевна, Лим Ирина
Витальевна, Щелкунова Полинина
Николаевна , Пертрова Арина
Эдуардовна, Курохтин Георгий Игоревич ,
Емельянцева Варвара Андреевна,
Новикова Валерия Евгеньевна , Савина
Софья Денисовна , Ризаева Зарина
Фирудинова,Акимова Кристина Андреевна
, Пейкришвили Стелла Шалвовна
Руководитель:
Самутичева Дарья Сергеевна

2.

Цель: создание дизайн-проекта усадьбы Трубецских в
Хамовниках
Задачи:
– интервью с заказчиком, узнать его пожелания;
– обмерить помещение;
– мудборд;
– скетчи;
– чертежи в AutoCAD;
– поиск мебели в магазинах;
– создание сметы;
– 3D визуализация в Blander;
– создание презентации с конечным результатом;
– баннер в Adobe Photoshope;
– защита проекта.

3.

Дизайн
Самутичева
Дарья
Сергеевна
Мудборд

4.

Дизайн
Акимова К.А,Емельянцева
ВА.,КручининаМ.В.
Самутичева
Дарья
Сергеевна
Скетчи

5.

Дизайн
Акимова К.А.
Самутичева
Дарья
Сергеевна

визуализация

6.

7.

Дизайн
Кручинина М.В.
Самутичева
Дарья
Сергеевна

визуализация

8.

Дизайн
Боженко Д.С.
Самутичева
Дарья
Сергеевна
Ситуационный
план 1го этажа

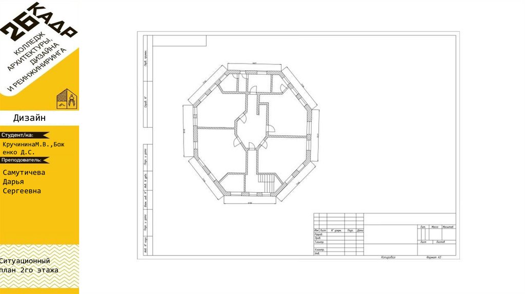
9.

Дизайн
КручининаМ.В.,Бож
енко Д.С.
Самутичева
Дарья
Сергеевна
Ситуационный
план 2го этажа

10.

Дизайн
Боженко Д.С.
Самутичева
Дарья
Сергеевна
План
Электрики 1го
этажа

11.

Дизайн
КручининаМ.В.,Бож
енко Д.С.
Самутичева
Дарья
Сергеевна
План
Электрики 2го
этажа

12.

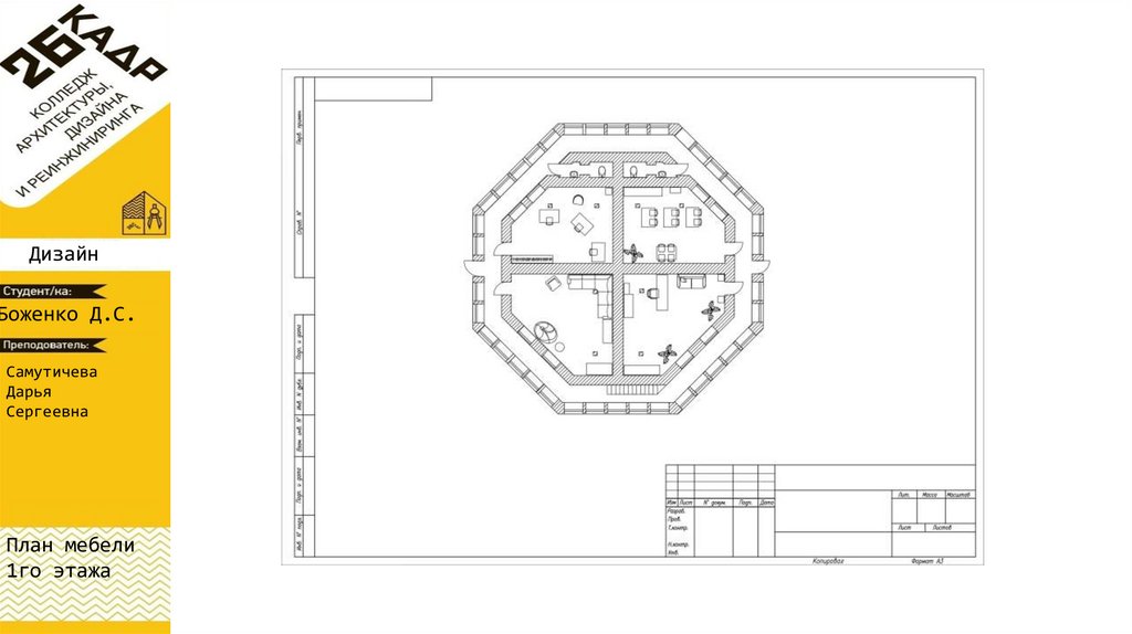
Дизайн
Боженко Д.С.
Самутичева
Дарья
Сергеевна
План мебели
1го этажа

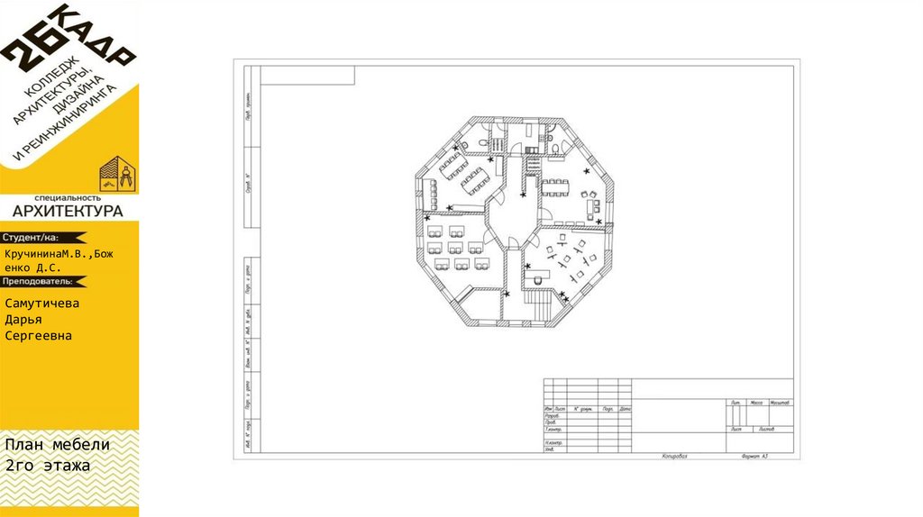
13.

КручининаМ.В.,Бож
енко Д.С.
Самутичева
Дарья
Сергеевна
План мебели
2го этажа

14.

Дизайн
Кручинина М.В.
Самутичева
Дарья
Сергеевна
Баннер

15.

Вывод:
Мы выполнили все поставленные нами задачи, опираясь на желания
заказчика;
Освоили программы AutoCAD и Blender.
мы научились:
работать в команде
коммуникации
распредению времени и обязанностей
развили творческие навыки
English     Русский Правила