1.69M
Категория: ЭлектроникаЭлектроника

Совершенствование диагностики силовых трансформаторов в условиях филиала ПАО «Россети Центр» - «Курскэнерго», г. Курск

1.

МИНИСТЕРСТВО СЕЛЬСКОГО ХОЗЯЙСТВА РОССИЙСКОЙ ФЕДЕРАЦИИ
ФЕДЕРАЛЬНОЕ ГОСУДАРСТВЕННОЕ БЮДЖЕТНОЕ ОБРАЗОВАТЕЛЬНОЕ УЧРЕЖДЕНИЕ
ВЫСШЕГО ОБРАЗОВАНИЯ
«КУРСКИЙ ГОСУДАРСТВЕННЫЙ АГРАРНЫЙ УНИВЕРСИТЕТ ИМЕНИ И.И. ИВАНОВА»
Факультет инженерный
Кафедра электротехники и электроэнергетики
Направление подготовки 35.03.06 «Агроинженерия»
Профиль «Электрооборудование и электротехнологии в АПК»
Форма обучения очная
«СОВЕРШЕНСТВОВАНИЕ ДИАГНОСТИКИ СИЛОВЫХ
РАНСФОРМАТОРОВ В УСЛОВИЯХ ФИЛИАЛА
ПАО «РОССЕТИ ЦЕНТР»- «КУРСКЭНЕРГО» Г. КУРСК»
Автор работы: Мухаметшин А.А.
Руководитель работы: Сафронов Р.И.
Курск 2025г.

2.

План технологического оборудования

3.

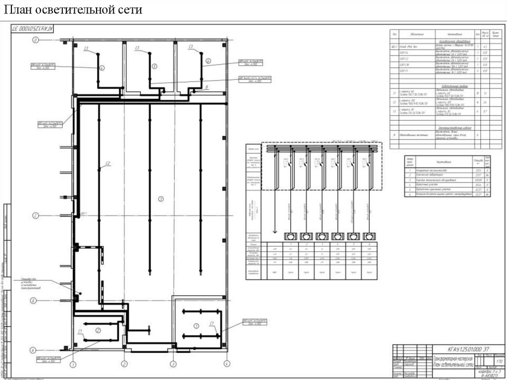
План осветительной сети

4.

План силового оборудования

5.

Структурная схема испытательной станции

6.

Принципиальная схема испытательной станции

7.

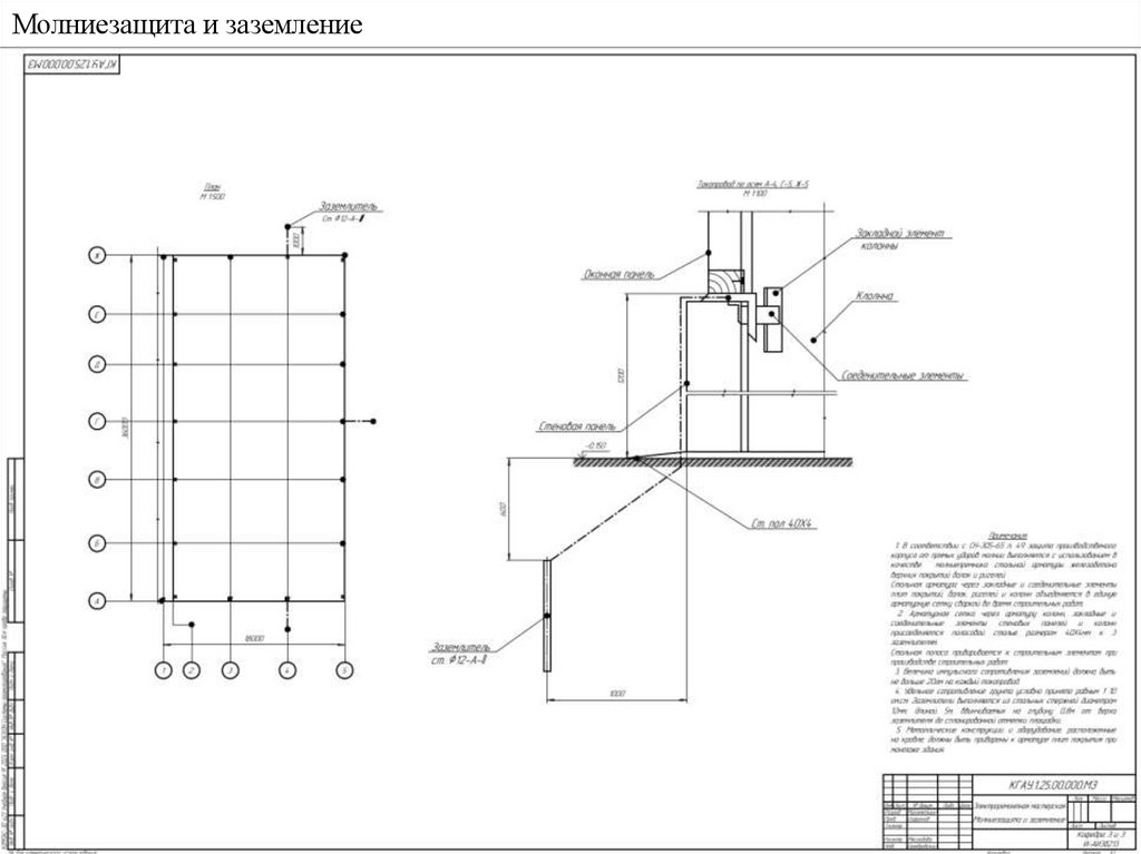
Молниезащита и заземление

8.

Технико-экономические показатели
English     Русский Правила