1.05M
Категория:
Инженерная графика
Похожие презентации:
Разработка эскизного проекта и расчёт основных показателей деятельности формовочного отделения сталелитейного цеха
ВКР: Разработка эскизного проекта и расчёт показателей деятельности плавильного отделения чугунолитейного цеха
ВКР: Разработка эскизного проекта и расчёт основных показателей деятельности стержневого отделения сталелитейного цеха
ВКР: Разработка эскизного проекта и расчёт основных показателей деятельности плавильного отделения чугунолитейного цеха
ВКР: Проект плавильного и формовочного отделений цеха чугунного литья мощностью
Эскизный проект упаковки наручных часов
Построение эскизных компоновок редукторов
Проект цеха по производству полукопченых колбас. «Армавирская», «Золотое кольцо»
Проект механосборочного цеха для изготовления установки кронштейнов крепления
Чугунолитейный цех
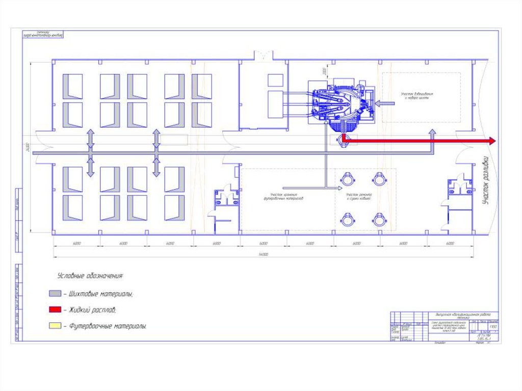
Эскизный проект плавильного отделения сталелитейного цеха
1.
“Разработан эскизный проект
плавильного отделения
сталелитейного цеха мощностью
10000 тысяч годных отливок в год
“.
2.
3.
4.
5.
6.
7.
•Спасибо за
внимание!
English
Русский
Правила