14.43M
Категория: РекламаРеклама

Продажа здания Коминтерн

1.

Продажа здания
г. Гомель, ул.
Интернациональная 5

2.

Информация об объекте
Местонахождение: 246050, Республика Беларусь, Гомельская обл., г. Гомель, ул. Интернациональная, 5/4
Дата аукциона 24.02.2021
Цена с НДС 1 781 386,72 (один миллион семьсот восемьдесят одна тысяча триста восемьдесят шесть рублей 72 копейки)
белорусских рублей с НДС
Организатор: ОАО «Гомельоблреклама» филиал «Эксперт-Услуга»
Количество надземных этажей: 2
Количество подземных этажей: 1
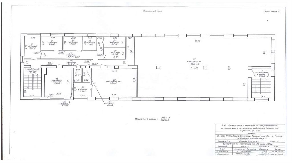
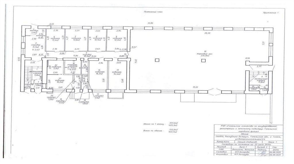
Общая площадь 937,7 м2:
1 этаж 403,3 м2
2 этаж 382,3 м2
подвал 152,1 м2
Год постройки: 1975
Фундамент: блоки железобетонные, конструкция здания- каркас железобетонный, материал наружных стен – кирпич,
перегородки- кирпич, лист гипсокартонный, Перекрытия - плита железобетонная, крыша (кровля) - рулонные кровельные
материалы, окна - ПВХ профиль, деревянный профиль, электро-,водоснабжение - централизованная система , канализация централизованная система, отопление – центральное, вентиляция - с естественным побуждением, телефония- есть.
Расположен в центре города рядом с центральным рынком и культурным центром. Развитая торговая инфраструктура. В будущем
рядом планируется открытие торгового центра непродовольственных товаров, что повлечет увеличение парковочных мест на
прилегающей территории.
Указанный объект свободен от любых прав третьих лиц, в том числе никому другому не продан, не заложен, под запретом не
состоит, судебного спора о нем не имеется, других владельцев нет.
Дополнительная информация по тел. (0232)33-19-81 Моб.+375(44)554-53-77 Петрушко Алексей Викторович
English     Русский Правила