1.26M
Категория: БизнесБизнес

JYSK ТРЦ "София" визуализация

1.

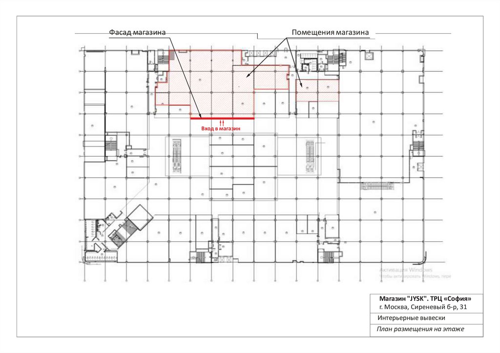
Фасад магазина
Помещения магазина
Вход в магазин
Магазин "JYSK". ТРЦ «София»
г. Москва, Сиреневый б-р, 31
Интерьерные вывески
План размещения на этаже

2.

Магазин "JYSK". ТРЦ «София»
г. Москва, Сиреневый б-р, 31
Интерьерные вывески
Визуализация

3.

Вывеска 1
Вывеска 2
Подложка — композитный материал 3 мм
цвет RAL 5002 (синий).
Логотип — объемные буквы с внутренней
светодиодной подсветкой
Пример Вывески 1:
Подложка — композитный материал 3 мм цвет RAL 7001 (серый)
Надпись — плоские прорезанные в подложе буквы с внутренней
светодиодной подсветкой
Пример Вывески 2:
Магазин "JYSK". ТРЦ «София»
г. Москва, Сиреневый б-р, 31
Интерьерные вывески
Развертка фасада, описание вывесок

4.

Вывеска JYSK
Магазин "JYSK". ТРЦ «София»
г. Москва, Сиреневый б-р, 31
Уличная вывеска
Ситуационный план

5.

Место №4
Размер рекламного поля 5762х1050 мм
Подложка — композитный материал 3 мм
Логотип — объемные буквы с внутренней светодиодной подсветкой
Магазин "JYSK". ТРЦ «София»
г. Москва, Сиреневый б-р, 31
Уличная вывеска
Схема расположения на фасаде

6.

Магазин "JYSK". ТРЦ «София»
г. Москва, Сиреневый б-р, 31
Уличная вывеска
Фотопривязка
English     Русский Правила