5.45M
Категория: СтроительствоСтроительство

Реконструкция участка измельчения комбикормов с разработкой электромеханического активатора на гатчинском комбикормовом заводе

1.

РЕКОНСТРУКЦИЯ УЧАСТКА ИЗМЕЛЬЧЕНИЯ
КОМБИКОРМОВ С РАЗРАБОТКОЙ
ЭЛЕКТРОМЕХАНИЧЕСКОГО АКТИВАТОРА НА
ГАТЧИНСКОМ КОМБИКОРМОВОМ ЗАВОДЕ
Выполнил: Федоров Николай Викторович

2.

Цель исследования - разработка и внедрение в
аппаратурно-технологическую линию производства
энергоэффективного
измельчающего
оборудования,
обеспечивающего
достижение
заданного гранулометрического состава продукта
и улучшение качества комбикорма.
Объект
исследования:
участок
измельчения
комбикормов на Гатчинском комбикормовом
заводе.
Предмет исследования: процесс измельчения
какаовеллы
на
электромагнитном
механоактиваторе.

3.

ПЛАН ПРОИЗВОДСТВЕННОГО ПОМЕЩЕНИЯ

4.

Структура
технологического
процесса
Структурная схема
модернизированного
технологического
процесса

5.

Характеристика вторичного сырья для производства
кормовых добавок
Химический состав анатомических частей
бобов какао
Анатомическое строение
какао – боба
Показатель
Доли анатомических частей, %
Ядро – 87
Какаовелла - 12
Зародыш - 1
Вода
51
93
6
Содержание сухих
95 1
91
94
52
2,6
2,9
Белковые вещества
13,5
14
24,5
Крахмал
8,3
4,5
_
Сахар (сахароза,
1,5
_
_
4,5
1
_
Клетчатка
3,2
15
2,8
Теобромин
1,5
0,7
1,7
Кофеин
0,2
0,15
0,2
Пентозаны
1,5
9
_
Органические
1,5
_
_
3,1
8
6,7
веществ,%
Жир
фруктоза, киокор)
Дубильные
вещества
кислоты( в т.ч.
летучие)
Зола общая

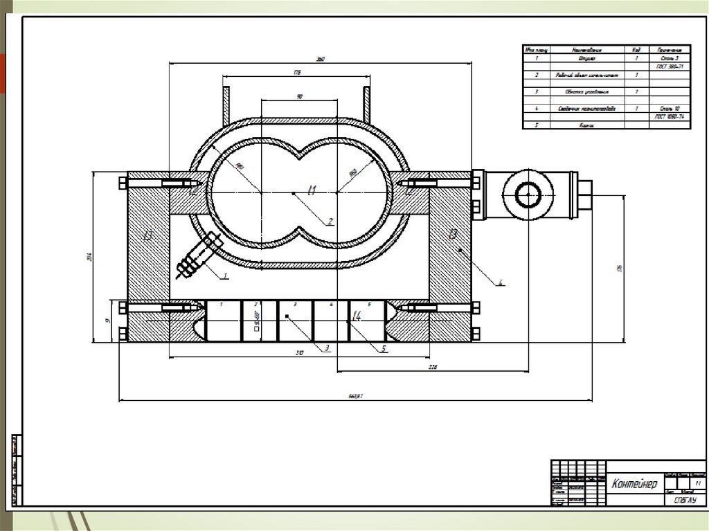
6.

Электромеханическое устройство для производства
кормовой добавки
5
1
1
7
10
9
5
7
12
9
4
11
2
4
3
6
6
8
8
1 – емкость; 2,3 – загрузочный и разгрузочный
патрубки;
4 – измельчающие элементы; 5,6 –
электромагниты;
7,8 – регулируемые токовые обмотки; 9 – вал;
10 – зубцы
1 – емкость; 2,3 – загрузочный и
разгрузочный патрубок;
5,6 –электромагниты; 7,8 – регулируемые
токовые обмотки; 9 – вал;
11 – перегородки; 12 – щетки-контакты

7.

Экспериментальная установка ЭММА-2
для диспергирования кормовых добавок
(патент РФ №1457881)

8.

B≠0
Принцип действия ЭММА
B≠0
B
B
n=0
n≠0
B
1. Образование структурных построений из
феррошаров в постоянном магнитном
поле (B ≠ 0, n = 0).
2. Организация слоя скольжения из
феррошаров (B ≠ 0, n ≠ 0).
B≠0
Pn
Pn
Fg
B
B
Pn, Pn – Нормальные составляющие сил взаимодействия между
феррошарами.
Pt – тангенциальная составляющая сил взаимодействия между
феррошарами.
Fg – сила, обязанная энергии приводного устройства.
В – индукция магнитного поля.
n – частота вращения внутреннего цилиндра.
B≠0
Pt
n≠0
n≠0
4. Комбинации структурных построений
(B ≠ 0, n ≠ 0).
3. Силовое взаимодействие между
феррошарами в структурных группах
(B ≠ 0, n ≠ 0).

9.

Блок-схема управления ЭММА-2
Энергетические потоки ЭММА:
а) физическая модель энергетических потоков;
б) схема подвода энергетических потоков;
– источник тока для создания магнитного поля в рабочем
объемизмельчителя; 2 – измельчитель; 3 – асинхронный трехфазный
двигатель, создающий вращающий момент между ротором и статором
измельчителя; 4 – корпус; 5 – обмотка управления;
вращения ЭД;
- ток управления;
n – частота
– напряжение на обмотке управления

10.

11.

Блок-схема программы «Расчет магнитопровода ЭММА»
Вход
Ввод:
F 1 H 1 * l1
G, , D1, L
V р .об G
S2
H 1 H ( B)
подпрограмма
D 2 н
4
*L
l 2 2( H b1)
нет
D2
8Vраб
D12
L
D2н D2 2hст
Ввод :
Вр, Вдоп, Мр.
Sср. р.об.
(D1 D2)
4
lр D 1 D 2
Фр Вр * Sср. раб
B 1 B доп
B1
Фр
S ср . 1
да
Bр Bр1 0,03
B2
Фр
S2
H 2 H ( B)
подпрограм ма
S ср .1 b 1 * b 2
F 2 H 2 *l 2
L
b3
2
F F F ... F
l1
F р H р * lр

Вр
М р . об
1
2
Конец
n

12.

Блок-схема программы «Расчет обмотки».
Блок-схема программы «Расчет обмотки управления ЭММА»
Начало
Кз( D1 D3) * b3
2S щ
Конец
( D1 D3) *Wу1 * R у1
Печать параметров
обмотки

Rу1
2
Нет
Iу1 Uу1
Да
Rу1
j у j доп
Зависимость Iу2
jу Iу
S1
Печать F
jу 2 0,7...2
F 1 Iу1 * W у1
Iу2 jу2 *S 2
F2
F
n
F1
Зависимость Iу 2
Wу 2 F 2
Sо 2
Iу 2
W у 2 * S щ 2
Кз2
F F ... F
1
n
So 2 So 2.доп
подпрограмма

13.

Результаты расчета ЭММА
Зависимость
Зависимость

14.

Функциональная зависимость частоты вращения ротора от
величины индукции в рабочем объеме ЭММА
, Тл
0,2
0,1
0,05
0,4
0,35
0,25
0,3
0,5
English     Русский Правила