21.34M
Категория: ОбразованиеОбразование

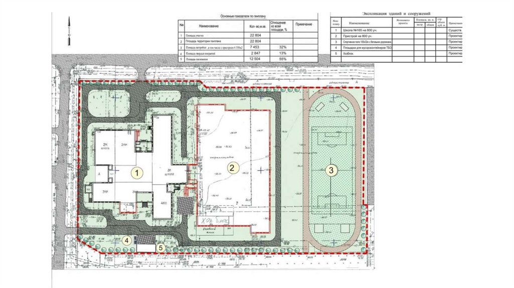
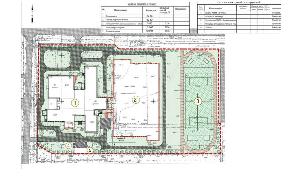
Полилингвальный комплекс "Адымнар - путь к знаниям и согласию" г. Казани

1.

Государственное автономное общеобразовательное учреждение
"Полилингвальный комплекс "Адымнар - путь к знаниям и согласию" г.Казани
Реконструкция (пристрой) школы №165

2.

3.

4.

5.

Входная группа №1

6.

7.

8.

9.

Входная группа №2

10.

11.

12.

13.

14.

План 1 этажа

15.

План 2 этажа

16.

План 3 этажа

17.

План 4 этажа

18.

Лестничная площадка

19.

Классы

20.

21.

Актовый
зал

22.

23.

Общие зоны

24.

Спортзал
English     Русский Правила