Жилой фонд – совокупность помещений, предназначенных для постоянного проживания. Величина жилого фонда определяется по числу м2
Про что говорим сегодня:
Материал постройки
Балкон или лоджия?
.
Технический этаж
.
Хрущёвки
.
Особенности
Общая площадь квартиры в «хрущёвке»
.
.
.
.
.
.
Сталинки
Рядовые и малоэтажные сталинки
.
.
.
Общая площадь квартиры в «сталинке»
Типовые панельки
.
Общая площадь квартиры в «типовой панельке»
Ленпроект
.
Общая площадь квартиры в «ленпроекте»
Кирпичные дома СССР
Селикатный кирпич или керамический ?
.
Общая площадь квартиры в «кирпичных домах СССР»
Новые дома РФ
.
.
Где брать информацию о доме?
.
23.47M
Категория: СтроительствоСтроительство

Жилой фонд: понятие, сущность и виды

1.

Жилой фонд: понятие,
сущность и виды

2. Жилой фонд – совокупность помещений, предназначенных для постоянного проживания. Величина жилого фонда определяется по числу м2

3. Про что говорим сегодня:

Хрущёвки (1956 – 1970 года)
Сталинки (1930 – 1950 года)
Типовые панельки (1970 – 1990 года)
Ленпроект (1970 – 1990 года)
Кирпичные дома СССР (1970 – 1990 года)
Новые дома РФ (с середины 90-х до наших дней года)

4. Материал постройки

Кирпич
Панель
Монолит

5. Балкон или лоджия?

6. .

7. Технический этаж

8.

Ликвидность?

9. .

г. Оренбург ул. Монтажников 10
г. Оренбург ул. Беляевская 55

10. Хрущёвки

— блочные, панельные или кирпичные дома,
трёх–пятиэтажные, массово сооружавшиеся в
СССР во время правления Никиты Сергеевича
Хрущёва и получившие в народе его имя.
Строительство «хрущёвок» продолжалось с 1956
по 1970 год.
Хрущёвки бывают обычные «Типовые» и так
называемый «Чешский проект»
г. Оренбург пр. Светлый 11

11. .

Типовая
Чешский проект

12. Особенности

г. Оренбург ул. 60 лет Октября
24

13. Общая площадь квартиры в «хрущёвке»

• 1-комнатная — 26 - 34 кв.м.;
• 2-комнатная — 33 - 48 кв.м.;
• 3-комнатная — 50 - 65 кв.м.

14. .

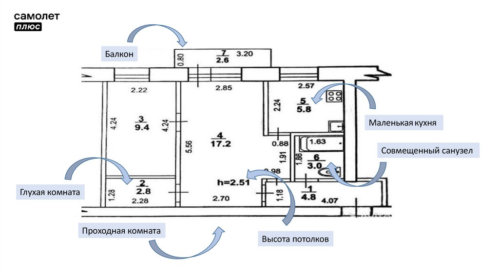
Пример планировки однокомнатной квартиры
Балкон
Проходная комната
Маленькая кухня
Совмещенный санузел

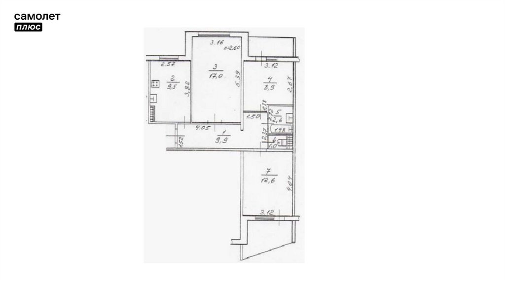
15. .

Примеры планировок двухкомнатных квартир

16. .

Балкон
Маленькая кухня
Совмещенный санузел
Глухая комната
Проходная комната
Высота потолков

17. .

Проходная комната
Балкон
Маленькая кухня
Скошенный угол

18. .

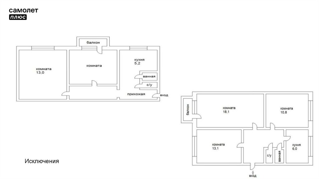
Примеры планировок трехкомнатных

19. .

Исключения

20.

г. Оренбург пер. Матросский 22
г. Оренбург пр. Кобозева 61

21. Сталинки

— дома, сооружавшиеся в СССР с конца 1930-х
годов до середины 1950-х годов, особенно во
время правления И. В. Сталина.
г. Оренбург ул. Володарского 37
г. Оренбург ул. Богдана Хмельницкого 5

22. Рядовые и малоэтажные сталинки

.
г. Оренбург ул. Томилинская 233
г. Оренбург Шарлыкское шоссе 24

23. .

г. Оренбург ул. Абдрашитова 240
г. Оренбург ул. Чебеньковская 4

24. .

25. .

Особенности
.
г. Оренбург ул. Советская 56

26. Общая площадь квартиры в «сталинке»

• 1-комнатная — 32 - 50 кв.м.;
• 2-комнатная — 44 - 66 кв.м.;
• 3-комнатная — 57 - 85 кв.м.
• 4-комнатная — 80 - 110 кв.м.

27.

г. Оренбург ул. Новая 12/3
г. Оренбург пер. Дальний 33

28. Типовые панельки

— жилые здания, построенные по одному
типовому проекту.
Наиболее массово возводились во многих
странах, являются основой архитектурного
облика спальных районов многих городов.
г. Оренбург ул. Брестская 5/1

29. .

Особенности
.
г. Оренбург ул. Чкалова 70

30. Общая площадь квартиры в «типовой панельке»

• 1-комнатная — 30 - 38 кв.м. кухня 6 - 7.5 кв.м.;
• 2-комнатная — 42 - 47 кв.м. кухня 6 - 7.5 кв.м.;
• 3-комнатная — 50 - 78 кв.м.
(угловые 60 - 78 кв.м.) кухня 6 - 10 кв.м.

31.

г. Оренбург ул. Чкалова 21
г. Оренбург пр. Победы 2/1

32. Ленпроект

Городов те же самые «типовые
панельки», только улучшенной версии.
Строились в период с 1970-х по 1990-е
года
г. Оренбург ул. Джангильдина 9

33. .

Особенности
.
г. Оренбург ул. Чкалова 53

34. Общая площадь квартиры в «ленпроекте»

• 1-комнатная — 36 - 42 кв.м.;
• 2-комнатная — 49 - 56 кв.м.;
• 3-комнатная — 69 - 85 кв.м.
• 4-х и 5-ти комнатные — от 75 кв.м.

35.

36.

г. Оренбург ул. Туркестанская 41
г. Оренбург ул. Терешковой 25

37. Кирпичные дома СССР

Как правило, типовые 9-14 этажные дома, построенные
из селикатного кирпича, обычно обшиты белыми
панелями или отштукатурены.
Строились в период с 1970-х по 1990-е года.
г. Оренбург пр. Гагарина 13а

38. Селикатный кирпич или керамический ?

39. .

Особенности
.
г. Оренбург пр. Победы 144а

40. Общая площадь квартиры в «кирпичных домах СССР»

• 1-комнатная — 29 - 47 кв.м.;
• 2-комнатная — 39 - 58 кв.м.;
• 3-комнатная — 56 - 85 кв.м.
• 4-комнатная — 76 - 120 кв.м.

41.

г. Оренбург ул. Ленинградская 92
г. Оренбург пр. Знаменский 1/1
г. Оренбург ул. 70 лет ВЛКСМ 10/1

42. Новые дома РФ

дома построенные с середины 90-х до наших дней
Материал постройки:
панель, монолит (устойчив к усадке), кирпич
г. Оренбург ЖК «Акварель» на ул. Поляничко от застройщика Лист

43. .

Особенности
г. Оренбург ЖК «Дубки» ул.
Уральская
От застройщика УПСК Жилстрой

44. .

45.

46.

47.

48.

А
2
1
3
Б
В

49. Где брать информацию о доме?

На примере:
г. Оренбург ул. Восточная 27

50.

51.

52.

Спасибо за внимание!

53. .

Лектор: Руководитель отдела продаж Подопригора Александра
English     Русский Правила