349.60K

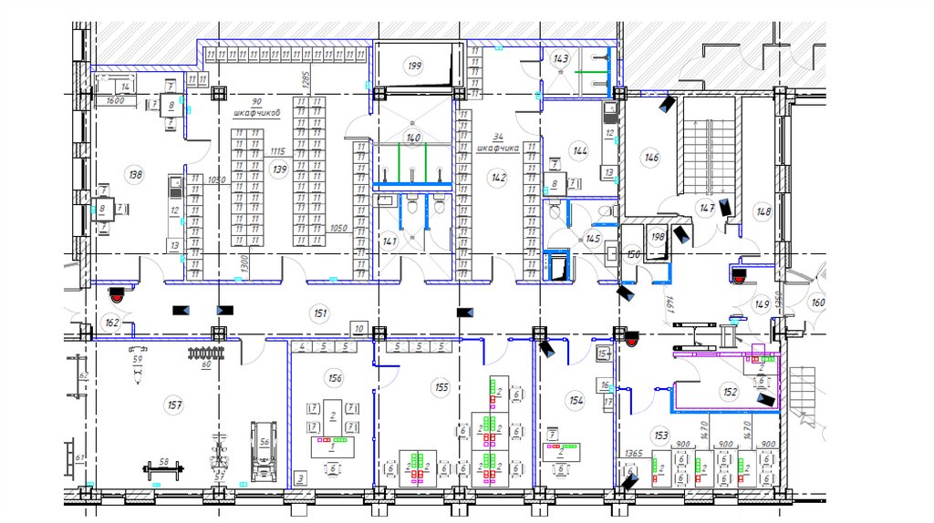
растановка камер 4.0

1.

2.

3.

Хранение средств ЦБ РФ

4.

5.

Спецификация видеокамер
камера
Модель
Количество (шт.)
В Наличии (шт.)
DS-2143G2-IS 2,8
84
84
DS-2743G2-IZS
46
46
DS-2743G2-IZS + микрофон
10
10
DS-2783G2-IZS
30
30
DS-3786G2T-IZS (C)
12
12
HDW2431TP-AS-0280B
7
Доп. потребность
10 микрофонов Stalbery
7
English     Русский Правила