4.50M
Категория: СтроительствоСтроительство

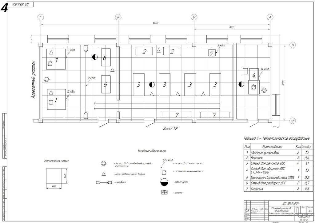
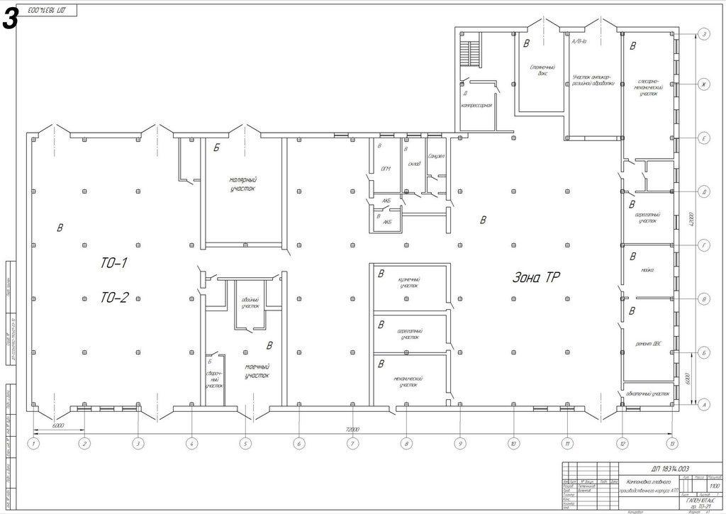
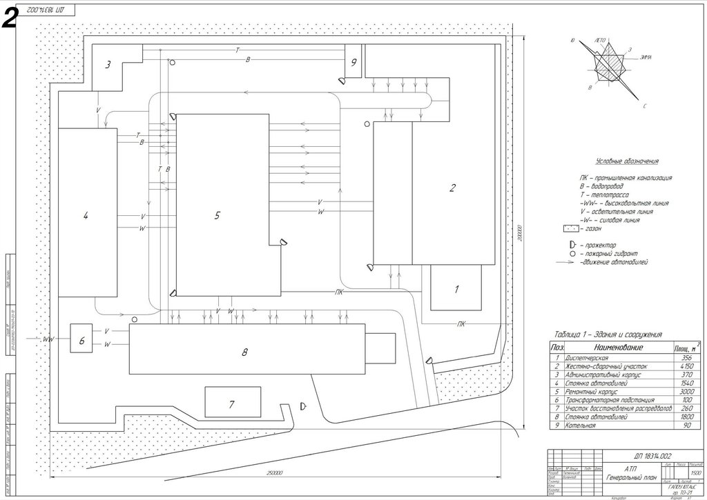
Реконструкция моторного участка АТП

1.

Министерство образования Кузбасса
Государственное автономное профессиональное образовательное учреждение
«ЮРГИНСКИЙ ТЕХНИКУМ АГРОТЕХНОЛОГИЙ И СЕРВИСА»
ДИПЛОМНЫЙ ПРОЕКТ
Реконструкция моторного участка АТП
студента группы ТО-21
Тютюнникова Владислава Викторовича
Руководитель: Валентов А.В.
ЮРГА 2025

2.

1

3.

2

4.

3

5.

4

6.

5

7.

6

8.

7

9.

8

10.

СПАСИБО ЗА ВНИМАНИЕ!
English     Русский Правила